
Set within an agro-industrial landscape shaped by heavy vehicles, logistics yards and large-scale storage sheds, the new Agrosemillas offices emerge as a precise counterpoint to their surroundings. The site lies along a national road that physically separates it from the small town of El Peral, home to just 660 inhabitants. Vast agricultural fields stretch in every direction, offering no urban references and little protection from a climate defined by sharp seasonal contrasts and episodes of torrential rain. Here, time is measured not by the clock but by harvest cycles, alternating between periods of dormancy and moments of relentless activity.

In this context, the project introduces a work environment capable of supporting concentration, research and meetings within a setting dominated by dust, noise and logistical intensity. Agrosemillas’ workforce shifts in rhythm and task throughout the year, from warehouse operations to engineering and innovation. The building therefore had to accommodate changing uses without sacrificing clarity. At the same time, it needed to maintain a direct relationship with the surrounding industrial sheds, establishing a formal continuity that binds offices and production into a single spatial narrative.

ARCHITECTURE AS CORPORATE TRANSITION
The new headquarters coincides with a pivotal moment for Agrosemillas. Long associated with seed production, the company is entering a phase oriented toward technological development and sustainability. The architecture consciously embodies this transition. It preserves continuity with the company’s industrial legacy while projecting a more open and forward-looking identity.




This duality is expressed with disarming directness. The corporate colours, green and yellow, are applied unapologetically across the façades. Large circular openings puncture the envelope, each protected by manually operated round shutters that evoke the graphic clarity of a digital switch. The gesture is both pragmatic and symbolic, signalling a shift from purely agricultural production toward research-driven innovation.




BUILDING WITH WHAT IS AT HAND
Constructed simultaneously with more than 4,500 square metres of productive and bulk-storage sheds, the offices share structural systems, materials and construction trades with the industrial complex. Rather than importing specialised solutions, the project draws on local labour and knowledge: the village blacksmith and plumber, nearby formwork teams and established industrial contractors. Design decisions align deliberately with these available means, resulting in an architecture of restraint and constructive intelligence.


Four reused standard shipping containers, opened along two sides, form the core of the spatial strategy. Resting on a concrete plinth common to the sheds, their arrangement generates a saw-tooth roof profile that operates as a continuous sequence of skylights. Oriented to the north, these planes provide controlled, even daylight and lend the interior an unexpected spatial richness. The reuse of industrial elements reinforces the project’s ethos of pragmatic sustainability.
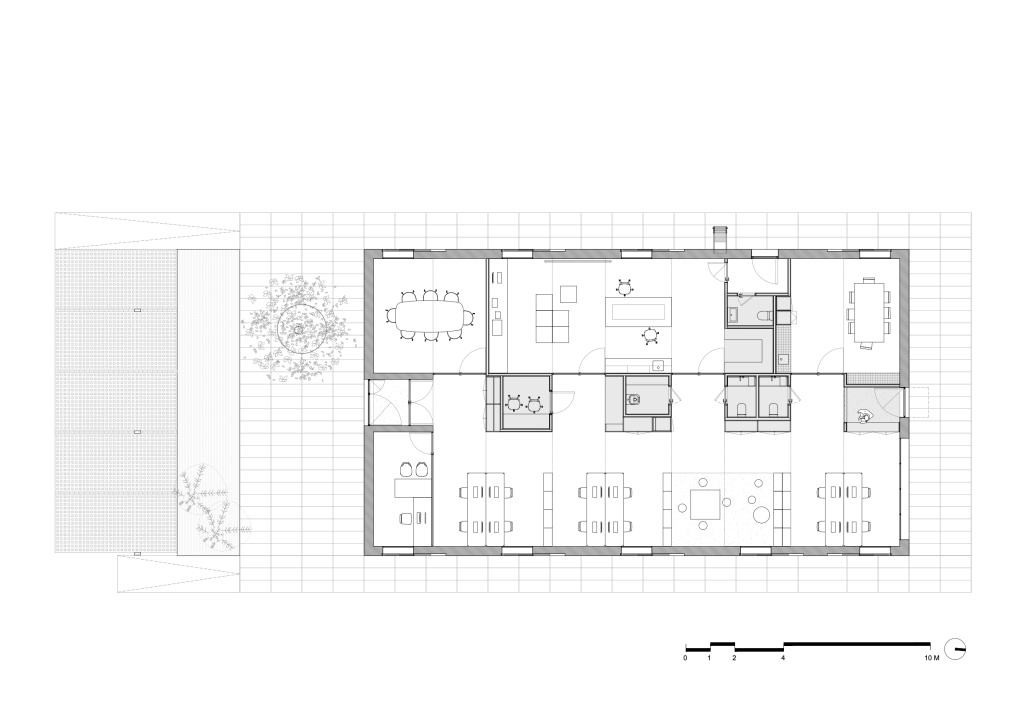
A CLEAR AND REPEATABLE SYSTEM
The plan unfolds through a simple, legible grid. Three parallel bands organise the programme: open workspaces, service areas, and meeting rooms and laboratory spaces. Circulation flows are segregated according to logistical and operational needs, maintaining efficiency during peak harvest periods. Above, intermediate roofs incorporate strips of experimental cultivation, integrating research and production directly into the architectural fabric.




The Agrosemillas offices do not seek monumentality. Instead, they operate as a precise piece of work infrastructure, calibrated to local climate, labour and industry. Through system and material economy, the project transforms an environment conceived for machines into one capable of sustaining human concentration and innovation. It is an architecture that understands its territory, acknowledges its means and quietly redefines the scale of work within the agro-industrial landscape.




Project Credit
Project name: Agrosemillas Offices
Design firm: Impepinable Studio / @impepinable.studio
Location: El Peral, Cuenca, Spain
Year: 2024-2025
Built area: 280 m²
Photo: Del Rio Bani / @delriobani
More Photos