
In a tightly knit seaside enclave of detached homes, this 112 square meter residence sits at the end of a cul de sac, where daylight lingers and neighborhood life feels close at hand. The project replaces the grandparents’ former house with a new shared home for six family members across three generations, bringing three younger residents and three older ones into a single domestic framework designed for both togetherness and autonomy.
The younger couple runs a hair salon nearby, their child moving fluidly between home and the grandparents. The older generation balances work from home with commuting into the city. With different schedules, needs, and social rhythms, the brief called for a house that could absorb divergence without friction, supporting private retreat while making everyday encounter effortless.


The design sets out to behave like a school of fish, gathering and dispersing while remaining part of a loose collective. A disciplined grid establishes structural clarity, but the order is strategically softened. Selected columns are omitted and beams are staggered, loosening the rigidity of the system and allowing spaces to read as continuous rather than compartmentalised. The result is an interior that feels cohesive even as it breaks into distinct zones.

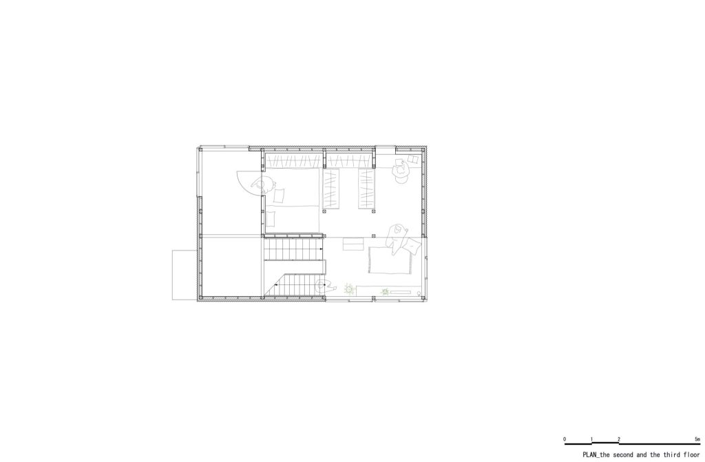
Five split levels rise from a semi basement to a rooftop, stitched together by a single vertical circulation spine. Rather than treating levels as separation, the house uses subtle shifts in height to tune relationships. Small differences in floor elevation alter lines of sight, producing intimate micro territories within a larger spatial field. These incremental thresholds become inhabitable edges, inviting occupants to sit, recline, pause, and perch, turning circulation into a lived landscape.

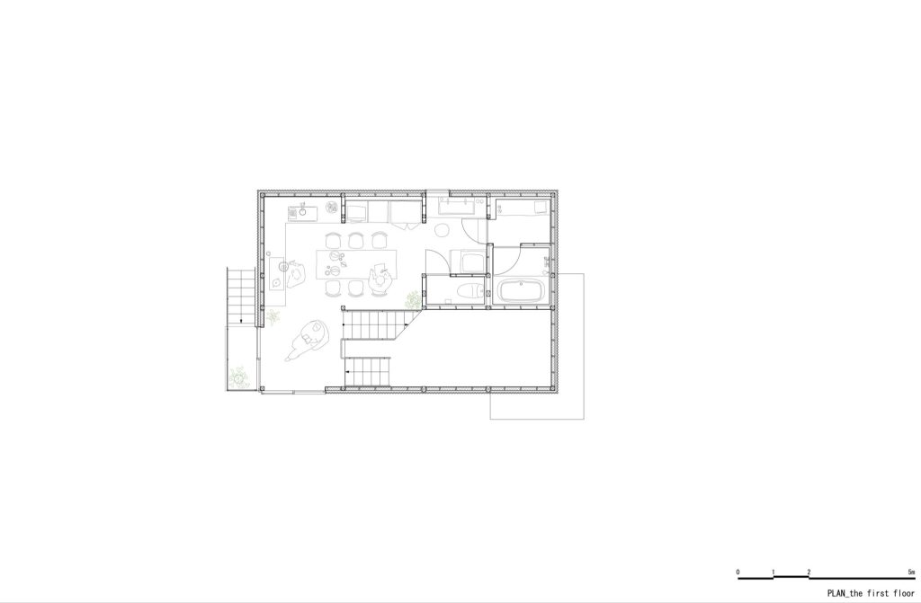
A north south garden axis threads through the volume, drawing in the neighborhood’s familiar scale and the brightness of sunlit southern yards. At ground level, a generous balcony and full height sliding doors dissolve the boundary with the front garden, extending domestic life outward toward the street. This porous threshold enables the child’s play to spill naturally across inside and outside, while also encouraging the kind of casual conversation that animates residential streets, especially when neighbors linger in adjacent plots.

On the first floor, an expansive dining table anchors the plan. It is conceived less as a room feature than as an everyday instrument, supporting meals, study, remote work, and the quiet choreography of household tasks. This shared surface becomes the house’s stabilising centre, where overlapping schedules can coexist without negotiation, and where multigenerational life finds its most reliable point of contact.

Private rooms occupy the semi basement and the third floor, each compact but carefully calibrated, ranging from 4.5 to 7.3 square metres. Sliding partitions and mobile furnishings allow these spaces to toggle between connection and withdrawal, opening toward communal zones when desired or sealing into complete seclusion. Privacy here is not a fixed allocation but a daily choice, adjustable by each resident according to mood, work, rest, or family activity.
This flexibility positions the house to evolve over time, accommodating changing family arrangements and shifting lifestyles across decades without losing its underlying spatial logic.


Through structural elisions, calibrated level shifts, and an intentionally permeable perimeter, the residence constructs a delicate balance. It supports six distinct lives with their own rhythms and boundaries, yet keeps the household legible as a shared whole. Like a collective in motion, the home remains perpetually reconfigurable, fostering independence without sacrificing the ease of being together.



Project Credit
Project name: Chigasaki House
Location: Kanagawa, Japan
Design: TAMADA & WAKIMOTO ARCHITECTS
Completed: 2024
Photo: Kenta Hase


