
This house explores how domestic architecture can resonate quietly across cultures and eras. Neither luxurious nor minimalist, it seeks a restrained and universal beauty grounded in place.

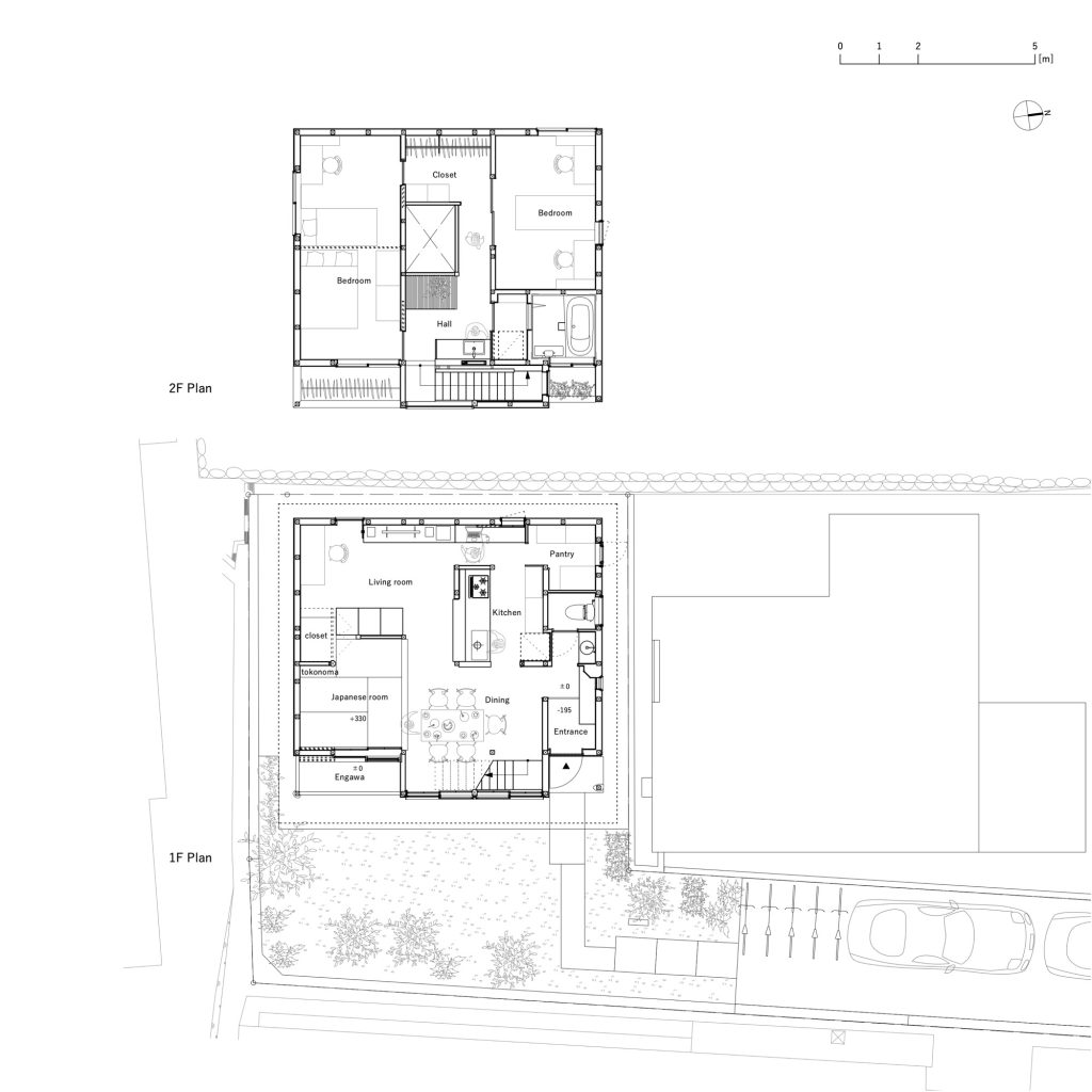
Built on a narrow flagpole shaped plot within a mixed residential neighborhood, the project sits between traditional Japanese houses and contemporary developer built homes. Designed for a family of five under a limited budget, the house turns to the spatial and constructive logic of the traditional Japanese dwelling as a rational response to contemporary constraints.

The timber structure is expressed through shinkabe construction, with columns and beams exposed within the interior. Rather than rigidly separating rooms, spaces remain loosely connected, allowing light, air, and movement to flow through the house. Despite its compact footprint, this permeability creates a sense of openness rather than enclosure.


A simple two storey gabled form allows the building to blend into its surroundings. The exterior is finished in charred cedar, while floor heights are kept low and the structure remains visible. A single layer of cedar boards functions as both the second floor flooring and the first floor ceiling, reducing materials and construction processes while reinforcing spatial continuity. All materials are standard and readily available, allowing the house to be built entirely by carpenters.

The kitchen and dining area sit at the center of the plan, reflecting everyday domestic life, with other functions compactly arranged around them. Toward the east, a large opening and an engawa veranda extend the interior outward, drawing light, breeze, and seasonal change into the house.


Within the Japanese style room, elements such as a floating storage closet, a small tokonoma, and a foldable wooden panel are integrated into furniture, allowing functions to appear only when needed and otherwise dissolve into space. Structural refinements further clarify the independence of the timber frame, with columns and beams acting directly as frames for sliding doors.










As tatami rooms and engawa gradually disappear from contemporary housing, the project argues for their continued relevance. Through restraint rather than nostalgia, the house proposes a modest and functional dwelling. A neutral Japanese house for ordinary life, offering a renewed standard for contemporary living.






Project Credit
Project Name: House in Saidera
Location: Japan, Osaka
Design firm: Akio Isshiki Architects / @akioisshiki_architects
Completion Year: 2025
Gross Built Area: 96m2
Photo: Benjamin Hosking / @benhoskingphotographer
More Photos