
In a dense residential district of Osaka, a narrow flagpole lot becomes the setting for a house that challenges the conventions of suburban subdivision. The site, originally part of a ready-built housing development, is defined by a slender access strip leading to a compact buildable parcel enclosed on all four sides by neighboring structures. Although constrained, the three-metre-wide pole section could be incorporated into the footprint, allowing the architecture to extend subtly into this marginal zone and recalibrate the limits of the plot.


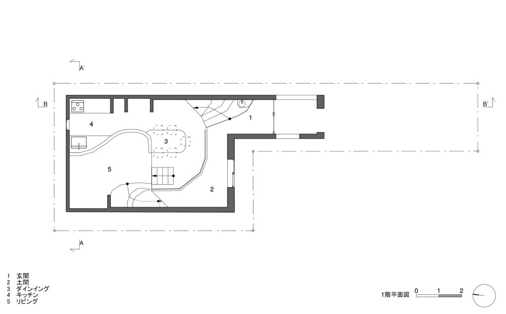
Designed for a family of five, the house balances spatial efficiency with a desire for individuality. Its compact dimensions accommodate the essential functions of domestic life while avoiding the predictability of a standard room-by-room layout. Instead of organizing the interior through rigid floor plates and enclosed volumes, the project proposes a spatial continuum shaped by light and level changes.



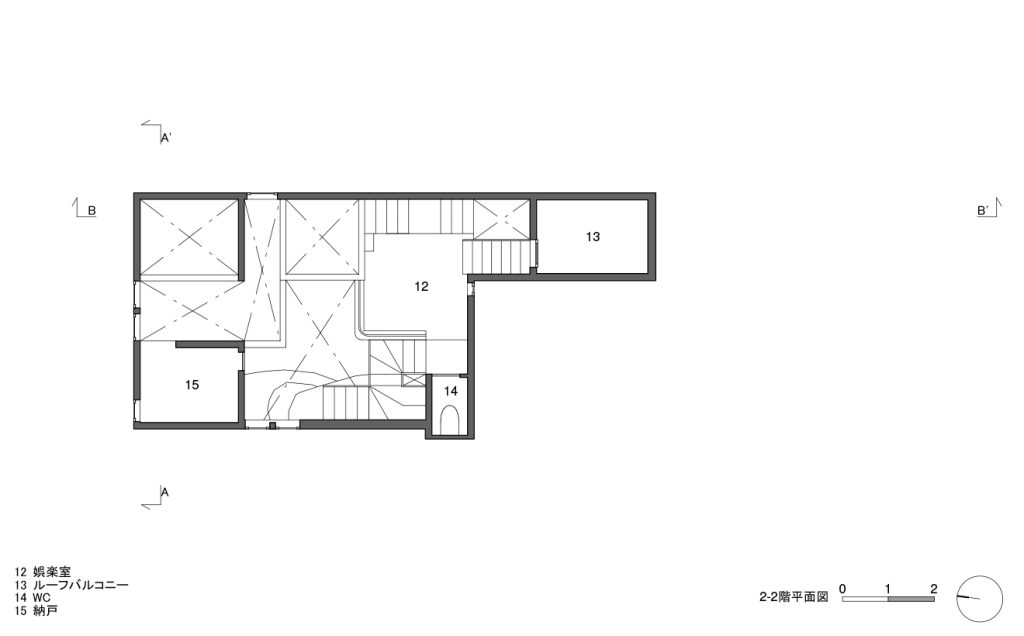
Surrounded by adjacent buildings, the house relinquishes the possibility of outward views and turns its attention upward. A central skylight becomes the primary architectural device, drawing daylight into the depth of the plan and establishing a vertical axis around which the interior is composed. Rather than treating light as a secondary supplement to façade openings, the design positions it as the generative core of the spatial experience.
The interior unfolds as a constructed topography. Floors shift incrementally, creating platforms, terraces, and intermediate zones that evoke natural terrain. These subtle variations in height produce a sense of movement and discovery, dissolving the boundary between circulation and inhabitation. The house is less a stack of discrete levels than a continuous landscape rising through the section.



This topographic strategy disrupts the familiarity of the conventional domestic plan. Places to sit, gather, withdraw, or observe emerge organically from the changes in elevation. The result is an environment that encourages informal occupation and multiple modes of use, where daily life unfolds across a layered ground rather than within fixed rooms.



Developed through a sustained process of dialogue and refinement, the irregular geometry was translated from conceptual explorations into precise architectural drawings and, ultimately, built form. What might have remained an abstract metaphor of terrain becomes a tangible spatial condition, articulated through light, proportion, and calibrated shifts in level.




Within the tight grain of Osaka’s residential fabric, the project demonstrates how constraint can become a catalyst. By organizing the house around a vertical aperture of sky and shaping its interior as a rising landscape, the design transforms a limited urban plot into a space defined not by enclosure, but by depth, light, and spatial freedom.
Project Credit
Project Name: House in Hirano
Completed: 2022
Location: Osaka, Japan
Design firm: Fujiwaramuro Architects / @fujiwaramuroarchitects
Site area: 87.07sqmt
Building area: 43.54 sqmt
More Photos