
In Hangzhou, a once stalled construction site has been reimagined as the Hangzhou Empathy Museum, a community art museum that transforms an incomplete development into a civic landmark. The original project comprised a finished underground parking garage and a planned three storey structure above ground. Rather than demolish or conceal what already existed, the design works with these constraints, converting part of the subterranean volume into exhibition galleries and stitching them seamlessly to the levels above.

The result is an architecture conceived from the inside out. Functional and curatorial requirements reshaped the inherited frame, prompting a recalibration of structure and facade while remaining faithful to the original planning prototype of a cube truncated by a right cylinder. Within the strict limits of the existing underground grid, the building evolves into a new spatial entity that is at once adaptive and formally precise.

A STAINLESS STEEL SHELL ALONG THE RIVER
Facing a river and positioned beside a major urban artery, the museum addresses the city with a deliberate gesture. The facade oriented toward the street appears peeled open, forming a shell that is both autonomous and porous. The entire exterior is wrapped in curved stainless steel panels whose inherent tension allows them to span without secondary purlins, producing a taut and rhythmic envelope.





Light animates the metal skin. As daylight grazes the curved surfaces, subtle reflections soften the industrial material, lending the volume an unexpected tenderness. On the north facade, perforated panels modulate sunlight and reframe the surrounding city as a blurred, almost painterly panorama. The urban landscape becomes an abstract scroll, filtered through a delicate metallic veil.





The second floor facade is lifted at a calculated angle to brace the canopy below, generating a profile that recalls the protective depth of traditional eaves. This structural adjustment produces a spatial resonance between contemporary fabrication and cultural memory, without resorting to literal quotation.


A SPATIAL CANYON FOR THE COMMUNITY
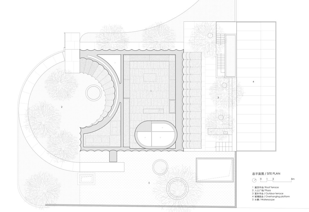
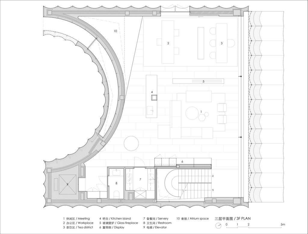
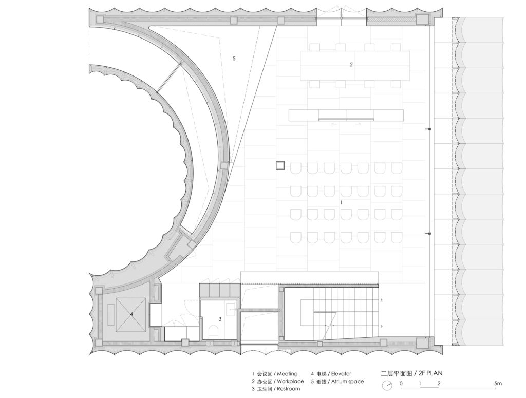
The entrance is recessed within a semicircular concavity that draws visitors inward. This centripetal form enhances the building’s connection to the neighbourhood, transforming arrival into a collective gesture. A slit in the roof admits natural light into a three storey void described as a spatial canyon, guiding visitors through a gradual psychological transition from everyday urban life to the contemplative realm of art.


On the ground floor, the plan opens northward onto a cantilevered platform, dissolving the boundary between institution and street. At the corner of the building, a vertical void links all three above ground levels, resolving the awkward geometry of the original sharp angle while creating a luminous shaft where daylight descends from above. The atmosphere is at once intimate and expansive, anchored in a palpable human scale.





A staircase climbs along the side wall, its movement partially revealed through the perforated facade. From the city, fragments of circulation appear and disappear, projecting the museum’s internal vitality outward. To connect the underground galleries with the world above, portions of the existing slabs were strategically removed. This incision allows natural light and glimpses of landscape to penetrate the basement, integrating above and below into a continuous spatial sequence.


ART AS EVERYDAY INFRASTRUCTURE
The Hangzhou Empathy Museum challenges the notion of art institutions as isolated temples. By adapting an unfinished project and weaving together underground and above ground spaces, the building redefines cultural infrastructure as something embedded in daily life. Its clear formal order and restrained material palette carve out a quiet spiritual enclave within the density of contemporary Hangzhou.


Through precise interventions and a disciplined geometry, the museum demonstrates how adaptive reuse can generate not only functional efficiency but also new civic meaning. In a city defined by rapid growth and infrastructural intensity, this stainless steel volume offers a reflective counterpoint, turning an abandoned structure into a place of empathy, encounter and shared imagination.








Project Credit
Project name: Hangzhou Empathy Museum
Design: TAOA / @taoarchitecture
Design Year: 2022-2024
Completion Year: 2025
Location: Xiaoshan District, Hangzhou, China
Gross Built Area: 1628 m2, Above Ground 570 m2
Photo Credit: Tao Lei
More Photos