
On the Aegean island of Cunda, architecture studio SOUR has completed Pur, a residential recording studio and boutique hospitality project conceived as a place where music, landscape, and cultural exchange converge. The project stems from a simple but powerful premise: the environment in which music is created shapes the music itself.
As Dave Grohl once reflected while discussing the making of Sonic Highways, the memory of a recording is inseparable from the people and places where it occurs. Pur translates this idea into architecture, creating a setting where the act of recording becomes intertwined with community, context, and shared experience.

Rather than functioning solely as a technical facility, Pur operates as cultural infrastructure. Musicians, producers, and visitors inhabit a space where music production and hospitality coexist, forming a platform for collaboration across cultures and disciplines.


The project addresses a fundamental architectural challenge. How can a building respond to the elemental qualities of its site while simultaneously delivering the technical precision required for world-class sound production?


SOUR approaches this question through what the studio describes as a “dual alignment.” On one hand, the architecture embraces the vernacular language of Cunda Island, referencing its masonry construction, timber structures, and calm relationship with landscape. On the other, it integrates advanced acoustic technologies capable of supporting complex contemporary recording processes.


The building is expressed as a restrained two-storey composition of masonry and timber that sits comfortably within the island’s architectural fabric. From the outside, its presence feels familiar and grounded within the rhythms of olive trees, sea breezes, and local materials.
Once inside, however, the spatial narrative gradually shifts.

The interior unfolds as a sequence of acoustically distinct environments. Rooms vary in height, width, depth, and material composition, allowing each space to generate a unique sonic identity. Carefully calibrated surfaces of reflection and absorption create recording conditions where the spatial character of a room directly shapes the sound captured within it.



A sculptural GFRC shell mediates this transition between exterior calm and interior precision. Acting as an architectural threshold, it guides visitors from the quiet vernacular world of Cunda into a carefully tuned acoustic environment. The passage functions almost as a spatial metaphor for music itself, which moves fluidly across cultures, histories, and geographies.
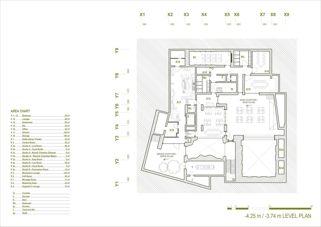
From the ground level, circulation gradually descends toward the Musician’s Lounge located ten metres below grade. The descent evokes the atmosphere of a cave, a spatial typology long associated with resonance and sound.

Despite its subterranean location, the lounge remains visually connected to the restaurant and terraces above. Natural light filters deep into the interior, maintaining an atmosphere of openness and comfort. The design avoids the sensation of entering a basement, instead creating a calm retreat where musicians can gather, rest, and reflect.


At the technical core of Pur lies a fully equipped recording complex built using a box-in-box acoustic system to ensure complete isolation and optimal sound performance. The facility includes live rooms, control rooms, vocal and percussion studios, editing and mastering suites, reverb chambers, and a Dolby Atmos theatre.
The main live room is designed to accommodate productions ranging from small ensembles to a full seventy-five-piece orchestra. Sliding partitions and rotating ceiling panels with adjustable height allow the acoustic characteristics of the space to be tuned with precision. Reverberation time and early reflections can be modified according to the needs of each recording session, expanding the sonic range of the studio.
Additional echo chambers further enrich the acoustic palette, enabling musicians and engineers to explore a wide spectrum of sound textures.



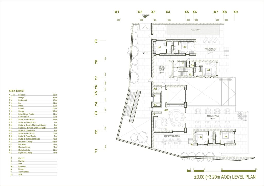
Beyond the recording facilities, Pur operates as a boutique hospitality destination. A double-height restaurant anchors the social life of the building, connecting interior lounges with outdoor courtyards, terraces, and views toward the Aegean shoreline.
The project deliberately dissolves the boundary between technical production and everyday experience. Musicians, guests, and visitors inhabit overlapping spaces where work, rest, and conversation unfold naturally.

The design process itself mirrors the collaborative spirit of music. SOUR developed the project through an extended process of dialogue with international and local musicians, using participatory workshops and co-design methods to shape the architecture.
Several principles emerged from these conversations. Access to nature, a balance between global and local influences, spaces for creative activity, and places of retreat all became fundamental design drivers.
These ideas are embedded in the architecture not as abstract concepts but as lived spatial conditions. Studios open toward landscape views, circulation encourages encounters between artists, and quiet zones allow moments of reflection between recording sessions.
Pur ultimately positions architecture as an active participant in cultural production. The building does not simply contain music making. Instead, it shapes the conditions through which music emerges.
By combining vernacular materiality, advanced acoustic engineering, and collaborative design processes, the project proposes a new model for creative infrastructure. In this environment, architecture becomes both instrument and stage, supporting encounters between people, ideas, and sound.
Project Credit
Project name: PUR Residential Recording Studio
Location: Cunda, Ayvalik, Turkey
Date: 2019-2026
Size: 24,000 sf
Design: SOUR / @whatissour
Photography: Inanc Eray
More Photos