
In Usera, the new headquarters of Museo del Jamón proposes a workspace defined not by partition and efficiency alone, but by spatial gestures that choreograph everyday inhabitation. Conceived as a measured dialogue between curve and cut, the project unfolds across two longitudinal levels that share the same footprint and structural logic, yet articulate distinct spatial atmospheres. Each floor is organized by a single, almost elemental operation that transforms geometry into experience.


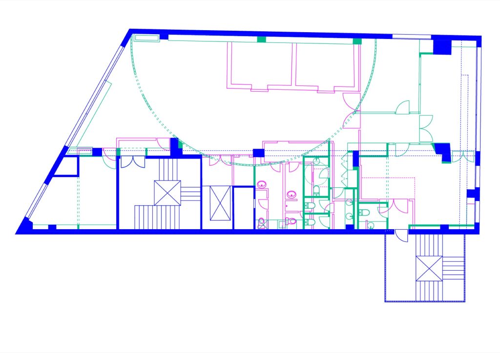
On the ground floor, a continuous curve gathers the office around a central heart. Rather than enforcing enclosure, the line suggests boundaries, drawing the gaze inward while allowing relationships to remain fluid. The gesture consolidates a collective core that operates as an interior plaza, a place of encounter and exchange. Around this nucleus, smaller rooms and work areas unfold in transversal sequences, conceived as interior extensions of that shared exterior. A subtly elevated platform reinforces the civic character of the central space, while a permeable façade punctuated by calibrated openings regulates access, light, and views. Here, architecture is defined less by separation than by calibrated proximity.


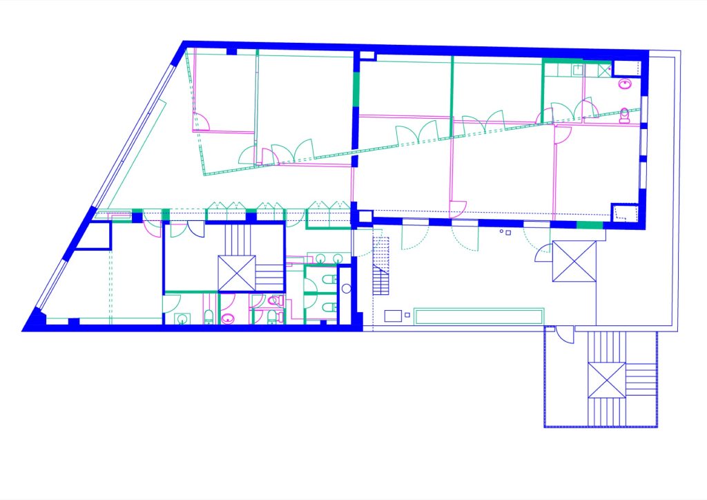
Upstairs, the language shifts from embrace to incision. A diagonal cut traverses the plan, introducing tension as an ordering principle. Unlike the curve below, this line establishes distinction. On one side, enclosed zones support concentration and individual work. On the other, a more indeterminate field remains open to appropriation, capable of absorbing changing programs and fluctuating rhythms. The cut does not fragment the floor; instead, it constructs a productive duality between continuity and interruption, intimacy and exposure. Spatial hierarchy emerges not through hierarchy of scale, but through relational contrast.



Both gestures are materialized through pavé walls that are at once dense and translucent. These surfaces confirm the geometry without rigidity, filtering light and suggesting presence beyond their thickness. Granite, black tiling, metal elements, and a restrained palette of reds and blues operate not as decorative signs but as environmental conditions. Material here is not applied; it performs. It structures atmosphere, anchors memory, and establishes continuity with a cultural context without resorting to explicit representation. Finishes become infrastructural, capable of sustaining identity through tactile and optical depth.



Between the welcoming curve and the precise cut, the Museo del Jamón headquarters achieves equilibrium. The project reframes the office as a spatial field attentive to light, movement, and material intelligence. Efficiency is present, yet secondary to a more nuanced ambition: to construct a workplace where geometry becomes a framework for collective experience, and where architecture mediates between individual focus and shared life.
Project Credit
Design firm: ba-rro / @ba____rro
Photography: Maru Serrano
Area: 580 m²
Location: Madrid, Spain
Year of construction: 2025
More Photos