
Set on a long, narrow property in southern Chile, Humo House sits inside a natural clearing that feels both protected and deliberately withheld. Trees press close on one side, while a small stream runs along the other. Dense vegetation erases any easy reading of the broader landscape. The lake is not announced by a panorama but suggested by sound, the steady movement of water pulling the gaze forward, beyond what the site is willing to reveal.
This is a house shaped by delay. Arrival becomes a sequence, not a statement, and the surrounding wilderness stays in control, offering only fragments until the very last moments.

At its core, Humo House begins as an 11-metre cube, then breaks its certainty with a quiet yet radical gesture. Two faces are split in half, turning a pure volume into an instrument for domestic oppositions. The larger facades open toward distant lake views, extending the home outward with restraint. The smaller facades, by contrast, are largely blind, tightening into protection, compressing the threshold into shelter.
Rather than chasing transparency everywhere, the architecture calibrates exposure. It frames the landscape when it matters and refuses it when it doesn’t, letting privacy and orientation define the building’s character more than spectacle.
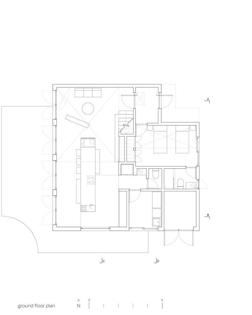
Inside, the plan reinforces the same logic of duality. One half of the house is given to public life as a single open volume that rises through the full height of the building. It is expansive without being noisy, a room that trades ornament for proportion and air, letting the geometry do the work. The other half stacks the private world across three levels, organizing daily routines and guest accommodation with a sense of separateness that still feels connected. The result is a home that performs a familiar contemporary wish: togetherness without friction, intimacy without collapse.


On the ground floor, a long table made from a fallen larch trunk anchors the house, both materially and socially. It is not treated as furniture but as infrastructure, operating as dining table and kitchen unit at once. A subtle move in section deepens this hybrid role, with a lowered floor on one side allowing comfortable cooking while keeping a shared surface with those seated. The gesture preserves a single plane of gathering, so preparation and conversation remain contiguous rather than separated into zones.

In a project obsessed with contrasts, this is the most domestic one: a shift in level that changes the body’s relationship to work, yet keeps the ritual collective.
The first floor is organized around a pair of master bedrooms, one for each partner. The arrangement reads like a negotiation made architectural: doors connect, a shared corridor mediates, and proximity is offered without being imposed. It creates the possibility of intimacy on demand while preserving autonomy as a default, a plan that recognises how contemporary couples often live with parallel rhythms.
Above, the second floor holds a study that opens toward the triple-height space below. From here, the building’s defining geometry becomes most legible, as the sloped roof turns the void into a spatial event rather than simply an absence.

Humo House is clad inside and out in raw timber slats, individually stained to create a surface that feels both precise and weathered. The choice is less about rustic effect than tonal continuity: in the region’s foggy mornings, the timber reads as an extension of the forest’s muted palette. The house does not compete with the landscape, it absorbs it, allowing light, moisture and shadow to complete the material expression over time.


Approach is choreographed as carefully as the volume. A winding path moves between two small ponds toward the entrance and terrace, then continues across the stream to a fire pit. It’s an itinerary designed to slow the body down, to make the site tactile. As one pushes through the trees, a small bay offers the first glimpse of the lake through dense foliage, a restrained reveal that validates everything the house has been holding back.





Project Credit
Name: Humo House
Location: Chile, Futrono
Design Firm: Iván Bravo Arquitectos / @comodoroo
Completed: 2023
Photo: Marcos Zegers