
On a narrow plot in Kashiwara, adjacent to a railway line and within immediate proximity to the station, a former bicycle parking area has been transformed into a single storey dwelling for two inhabitants. The site’s elongated geometry and exposure to constant train noise establish the primary architectural conditions. Rather than resisting these constraints, the project internalises them, converting limitation into spatial structure.

The programme called for minimal subdivision. The ambition was not a sequence of rooms but a continuous domestic field capable of accommodating daily life, motorcycle storage and the practice of flower arrangement within a unified atmosphere. Compactness here is not reduction, but concentration.

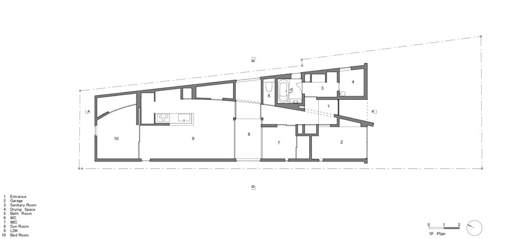
The linear configuration of the site suggested a slender architectural body. To address both daylight penetration and acoustic mitigation, the building is organised into two distinct volumes positioned at the front and rear of the plot. Between them, a sunroom operates as an environmental mediator.


This intermediate space performs multiple roles. It draws natural light deep into the interior while acting as a buffer against railway noise. The separation is therefore not fragmentation but calibration. A bridge like passage spans this central void, turning circulation into a suspended moment that reinforces awareness of spatial layering.


The strategy reframes the house as a sequence of thresholds rather than a sealed enclosure. Instead of isolating the dwelling from its context, the design filters external conditions through depth and gradation.
The integration of motorcycle storage within the living environment challenges conventional distinctions between utility and habitation. Rather than relegating functional requirements to peripheral zones, the project absorbs them into the architectural narrative. The house becomes a compact infrastructure for living, where hobbies and rituals coexist without hierarchical separation.


House in Kashiwara demonstrates how small scale residential architecture can operate with disciplinary precision. On a constrained urban site defined by noise and infrastructure, spatial continuity becomes both aesthetic principle and environmental strategy. The project reframes proximity to the railway not as liability but as catalyst, producing a slender dwelling whose calm interior depth stands in deliberate contrast to the movement beyond its walls.
Project Credit
Location: Kashiwara, Japan
Design firm: FujiwaraMuro Architects / @fujiwaramuroarchitects
More Photos