
Built over 15 years in Tenerife’s Las Chumberas, Holy Redeemer Church rises as four volcanic concrete volumes, using fissures of light and carefully tuned acoustics to merge sacred ritual with civic life.

A PARISH PROJECT SHAPED BY A CHANGING NEIGHBOURHOOD
Conceived and realised over 15 years, the Holy Redeemer Church emerged alongside the transformation of Las Chumberas, a 1970s district of apartment slabs, shopping centres, and industrial remnants on Tenerife. Backed by the Bishopric of Tenerife, the project was imagined less as a solitary place of worship than as a civic catalyst, a way to give the neighbourhood a recognisable centre and a renewed social presence within an unresolved urban fabric.

The compound brings together a church, a community centre, and a public square edged by greenery, framing a new everyday threshold between ritual and public life. Funding, gathered through donations from organisations, residents, and local business leaders, arrived unevenly and shaped the architecture accordingly. The phased delivery is visible in the timeline, with the community centre completed in 2008 as two volumes while other parts still await financing.


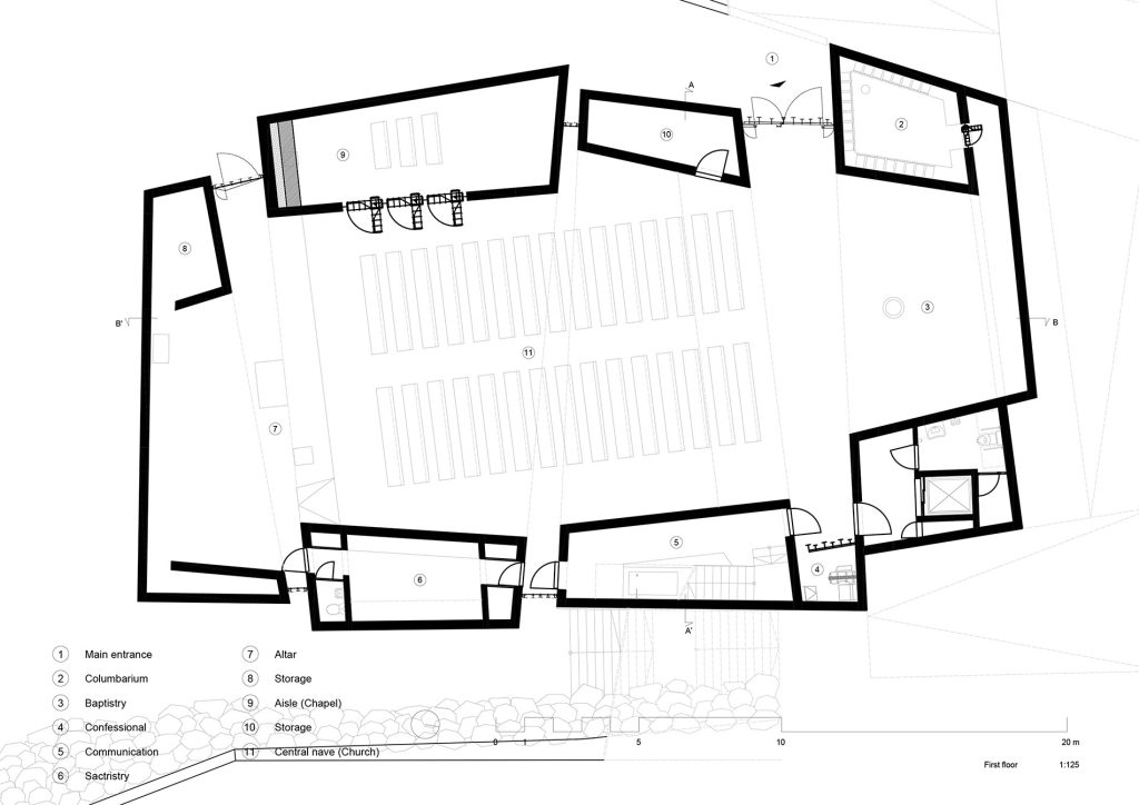
ARCHITECTURE AS GEOLOGY, NOT IMAGE
Instead of echoing the surrounding residential language, the church proposes a deliberate rupture. Drawing on the island’s volcanic geology, the building is partially sunk into the ground and rises as four massive volumes, like restless rocks pushed up from below. Their exposed concrete skin is rough, blunt, and insistently material, reading less like a façade than a geological surface. In a landscape of repetition, the church feels like an event, an outcrop that interrupts banality and insists on a different kind of presence.



Between the volumes, narrow fissures open up, filled with sculptural metal and glass. These cracks are not decorative gestures but calibrated instruments, bringing daylight into an austere composition that refuses excess.
A LITURGY WRITTEN IN DAYLIGHT
Inside, the architecture turns inward. Light is guided through the fissures to shape an introverted void, where illumination becomes a narrative device that marks the sacraments. At sunrise, a cross casts light behind the altar, evoking the imagery of burial and resurrection while also animating the baptismal font. As the day progresses, overhead openings bring noon light to the altar and to rites of confirmation and communion. Later, a concentrated shaft of light isolates the confessional, turning a private act into a spatial focus. Additional skylights are positioned to support the remaining rituals, allowing the building to operate as a temporal instrument as much as a container.




CONCRETE AS STRUCTURE, CLIMATE, AND SOUND
Concrete is not simply the project’s material, it is its argument. Used across exterior, interior, structure, and form, it also reflects a practical ethic: accessibility, collaboration with local contractors, and a Km 0 approach that keeps knowledge and production close to the site. The thick, solid walls provide thermal inertia, stabilising interior temperatures and improving energy performance through mass rather than machinery.

Acoustics are treated with equal seriousness. The project challenges the assumption that concrete is inherently harsh by combining exposed surfaces for diffusion with layers incorporating porous volcanic stone, picón, for absorption. The aim is an auditory clarity closer to opera houses than to the echo chambers often associated with raw concrete, supporting both speech and song in a building that deliberately merges ecclesiastical ceremony with social life.


A CIVIC ANCHOR FOR TENERIFE’S OUTSKIRTS
Holy Redeemer Church is a reminder that contemporary religious architecture can still act as urban infrastructure. In Las Chumberas, it offers more than a silhouette. It proposes a public square, a community programme, and a spatial drama made from rock, shadow, and time, an architecture that belongs to Tenerife’s volcanic ground while projecting a new identity for the neighbourhood.
Project Credit
Name: The Holy Redeemer Church
Location: Spain, Tenerife
Design: Fernando Menis / @fernandomenisestudio
Completed: 2020
Photo: Roland Halbe, Hisao Suzuki, Simona Rota
More Photos