
In the rural outskirts of Carballo, the Goiáns Social Centre emerges as both an architectural response and a social proposition. Designed for a dispersed community of nearly 500 residents long without a shared gathering space, the project repositions architecture as an instrument of cohesion. Here, building is not only an act of construction but an act of reconnection, addressing the quiet erosion of collective life in territories shaped by distance, ageing populations, and infrastructural absence.


Set within a shallow valley visible from surrounding roads, the building assumes a dual condition, serving the community while simultaneously representing it. Its form is composed through the aggregation of gabled volumes, recalling a cluster of rural houses brought together into a single figure. This compositional strategy extends beyond formal expression. Each roof retains a domestic scale that feels familiar and accessible, while their union constructs a new collective identity. The project reads as a built metaphor of coexistence, where individuality is preserved yet bound into a shared presence.


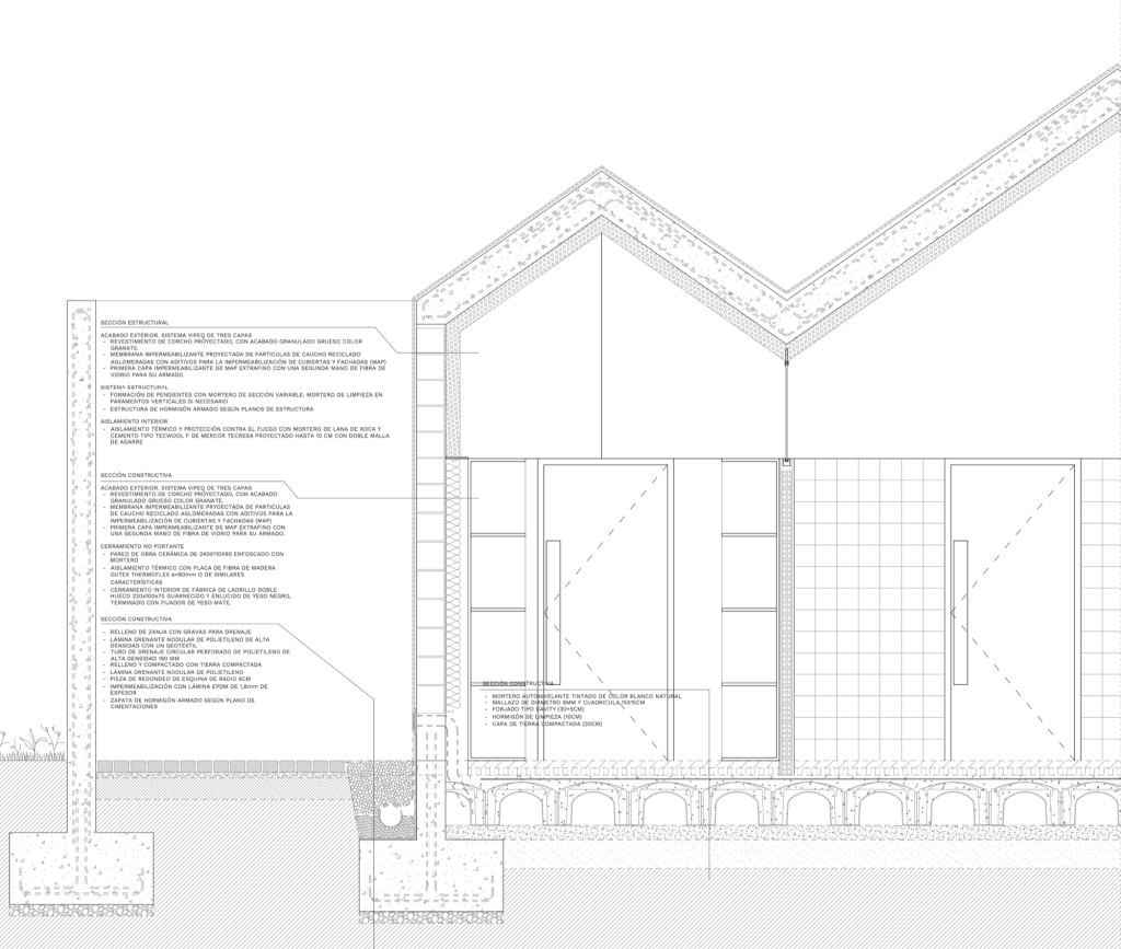
The design draws from the principles of Galician vernacular architecture, historically defined by thick masonry walls, limited openings, and steep roofs adapted to climate. These elements are not replicated but translated. From the outside, the building appears closed and monolithic. Crossing the threshold reveals a contrasting interior landscape shaped by light and permeability. Courtyards, a covered porch extending from the main hall, and carefully positioned openings introduce daylight deep into the plan, transforming the apparent opacity into a layered spatial experience.


At the core of the project lies a precise structural gesture. A square plan measuring sixteen metres on each side contains the entire programme beneath a single folded concrete roof. Conceived as a continuous plane, the twenty centimetre reinforced concrete slab gains structural stiffness through its folds, allowing it to span while bearing only at two ends. The roof appears to float, its geometry both expressive and efficient, articulating space through subtle variations in height and section.




Material decisions are driven by clarity and economy. The roof assembly is reduced to its essential layers, with a sprayed red waterproofing coating applied externally and a rockwool insulation layer internally. Both function simultaneously as finish surfaces, eliminating additional cladding and reducing construction complexity. This approach reinforces the project’s commitment to resource efficiency without compromising spatial quality.
Beneath the folded roof, the programme unfolds as a continuous interior environment. An assembly hall, exhibition space, and small kitchen are arranged without rigid separation, their boundaries defined instead by shifts in height, light, and proportion. The architecture accommodates multiple forms of occupation, from community meetings and workshops to celebrations and informal gatherings. Flexibility is not treated as neutrality but as a condition shaped by spatial nuance.








The Goiáns Social Centre extends beyond its physical footprint. It addresses a social absence as much as a spatial one, reintroducing a place for shared rituals and collective memory. In a rural context where daily life is increasingly fragmented, the building acts as a catalyst, offering a framework through which relationships can be rebuilt and sustained. It positions culture not as an external addition, but as an intrinsic part of living, caring for place, and maintaining continuity within the landscape.
Project Credit
Project: Goiáns Social Centre
Location: Xoane, A Coruña, Spain
Client: Concello de Carballo
Completion: 2025
Architects: NULA.STUDIO / @nula.studio
Photo: Luis Díaz Díaz / @luisdiazdiaz and NULA.STUDIO
More Photos