
Located in Gazzo Bigarello, Casa GA by Archiplan Studio reinterprets the rural architecture of the Po Valley through a contemporary lens. The project draws from a landscape historically shaped by agricultural buildings defined by clarity and necessity, where form follows the logic of construction and the availability of materials. Rather than replicating these precedents, the house distils their essence, translating a language of simplicity into a controlled and deliberate architectural expression.

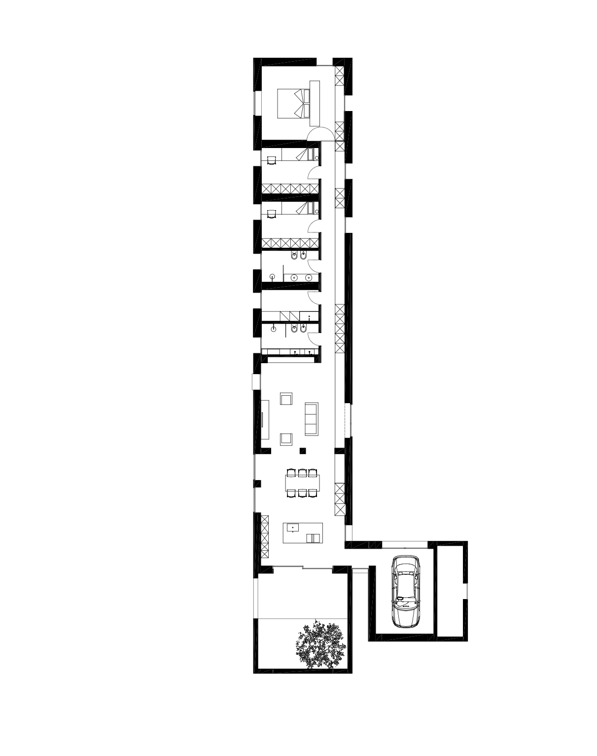
The resulting volume is immediate and legible. A compact rectangular form sits within the flat terrain, echoing the geometric clarity that has long characterised the region. This reduction is not nostalgic but analytical, positioning the house between memory and fabrication.

The building envelope is composed of prefabricated concrete panels paired with a white sheet metal roof. This restrained palette recalls the utilitarian character of local farm structures while introducing a sharper, more industrial precision. The concrete surfaces remain exposed, their texture intentionally left untreated, allowing the material to express its weight and irregularity.



This approach aligns with a broader architectural lineage in which concrete is understood as both structure and finish. The reference to figures such as Paulo Mendes da Rocha is evident in the way material presence is neither concealed nor softened. The roof, in contrast, reflects light and sky, reinforcing the clarity of the volume while amplifying its relationship with the open landscape.
Together, these elements define a building that is both grounded and abstract. It reads simultaneously as part of the agricultural fabric and as a precise, contemporary insertion.
The most significant spatial gesture emerges through contrast. While the exterior presents a robust and almost closed surface, the interior unfolds as a more open and inhabitable environment. This shift is not abrupt but carefully staged, transforming the act of entering into a perceptual transition.




The project operates within a long architectural tradition where outer restraint gives way to inner articulation. Historical references can be traced from the inward-looking Roman house to the enclosed dwellings of Mediterranean and North African contexts, where the exterior protects and the interior sustains daily life.



In Casa GA, this logic is reinterpreted through contemporary means. The protective envelope establishes a boundary that heightens the experience of space within, allowing light, warmth, and proportion to define the domestic environment.





Casa GA positions itself between two conditions. On one hand, it remains rooted in the agricultural landscape of the Po Valley, acknowledging its spatial and material heritage. On the other, it asserts a level of abstraction that distances it from direct imitation. Prefabrication introduces precision and repeatability, while the reduction of form intensifies the architectural statement.
The project ultimately constructs a dialogue between past and present, roughness and clarity, enclosure and openness. Through this balance, it proposes a contemporary dwelling that is both contextual and autonomous, shaped as much by memory as by intention.

Project Credit
Project name: Casa GA
Designer: ARCHIPLAN STUDIO / @archiplanstudio
Location: Gazzo Bigarello, Italy
Project Year: 2025
Photo Credits: Simone Bossi