
In a quiet hillside pocket of Tokyo, Ryuichi Sasaki Architecture completes Escenario Meguro Hanabusayama, a compact residential complex shaped by the terrain that surrounds it. The project treats topography as more than context. It becomes a design logic, translated into concrete ridges, calibrated openings, and an interior atmosphere built around stillness rather than spectacle.

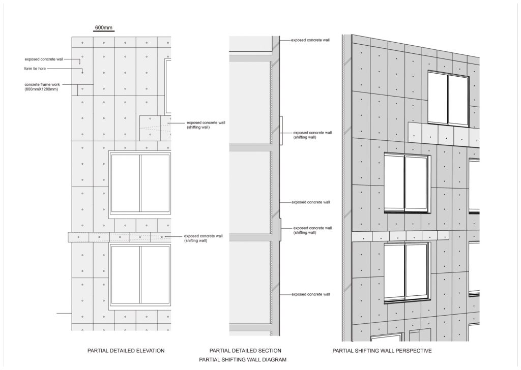
The building sits among rolling ground and long established residential fabric, with an approach that reinforces the sense of moving through layers. Its exposed concrete exterior is articulated with elongated, slanted projections that recall geological strata, giving the facade a quiet depth that shifts with sun and shadow. Boundary walls and the arrival sequence continue the theme through slender stone patterning and gentle inclines, blurring the line between constructed edge and natural formation.




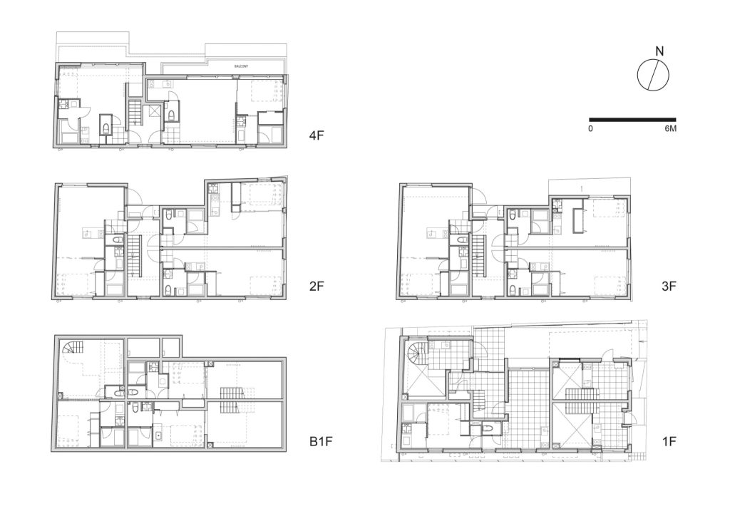
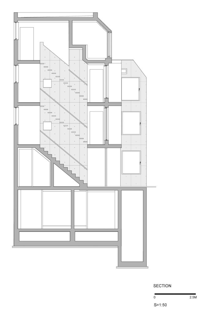
The site is defined by a stark contrast. A high cliff forms a closed rear condition, while the street elevation opens through a measured grid of square apertures. Across the homes, openings on two sides support natural ventilation and balanced daylight, reducing dependence on mechanical systems while strengthening the relationship between interior life and the city outside. Views toward the greenery above extend this logic into shakkei, where borrowed landscape becomes a spatial asset framed into daily routines.

Inside, concrete remains visible and finely finished, its soft greige tone operating as a steady ground for living. As light moves across the surfaces, the rooms feel both precise and unforced. The result is a restrained domestic environment that holds urban density and hillside quiet in the same frame, letting the land set the tempo and the architecture follow.







Project Credit
Project Name: Escenario Meguro Hanabusayama
Design Firm: Ryuichi Sasaki Architecture / @sasaki_architecture
Photography: Takumi Ota Photography
Site Area: 172,45 m2
Total Floor Area: 496,82 m2
Location: Tokyo, Japan
More Photos