
Lifted on ten columns above a valley floor, this hot spring retreat turns bathing into a slow ascent through poplar canopies, cliff rock, and softened skylight.

A SPRINGHOUSE IN THE WULING MOUNTAIN VALLEY
Set deep within the forests of Wuling Mountain, a branch of the Yanshan range in northern Beijing, the springhouse occupies a narrow river valley shaped by water and time. A steep rock cliff defines the western edge of the site, while to the east the land loosens into alluvial plains and a long chain of mountains beyond. Poplar trees thicken the valley floor. Reeds and grasses stitch together the ground plane, and a stream drifts from north to south through the site at an unhurried pace.


A new residential community is taking shape nearby. Future visitors will arrive by crossing a steel arch bridge over the stream, walking through the forest, and stepping into the building as though it were another instrument in the landscape rather than a destination imposed upon it.

AN APPARATUS THAT TOUCHES THE SLOPE LIGHTLY
The springhouse is imagined as an apparatus of the steaming hot spring, positioned to register the valley’s topography without interrupting it. To reduce the building’s impact on the original terrain, the main volume is lifted from the ground and carried by ten columns driven into the earth. The gesture preserves the continuity of the site, allowing water, vegetation, and the sense of a forest floor to remain legible beneath the architecture.


A VERTICAL PLAN THAT TURNS MOVEMENT INTO EXPERIENCE
Instead of spreading across the valley, the programme stacks upward. Hot spring spaces are layered vertically within a tower on the west side, while transportation and service functions are consolidated in an east core. Each level is linked by corridor like bridges, turning circulation into a sequence of framed encounters.


This compact footprint does more than protect the landscape. It creates a measured climb in which the building continually recalibrates relationships between poplar trunks, the near cliff face, and the distant mountain horizon. With every ascent, the view shifts, and the springhouse reveals itself less as a single room and more as a set of changing thresholds.


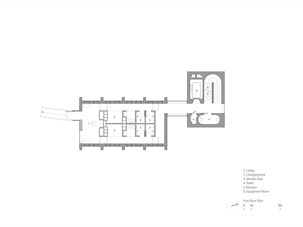
ONE RITUAL, THREE LEVELS OF HEAT AND LIGHT
The primary functions unfold across three main levels, each with its own atmosphere and tempo. On the first floor, an integrated teak box anchors the central space, concentrating reception, storage, lockers, and showers into a single warm core that prepares the body for bathing. The material presence of teak introduces a tactile counterpoint to the forest’s dampness and the building’s concrete restraint.


The second floor becomes a transparent relaxation lounge, enclosed by glass on all sides and held among the most lush portions of the poplar canopy. When weather allows, upper windows open to draw in fresh air, turning the lounge into a breathing chamber that frames seasonal change, from dense summer green to the bare precision of winter branches.


The third floor holds the bath pools, arranged at different temperatures and with varied water treatments beneath eight light wells. Daylight drops through wells rising eight metres high, then softens as it meets bush hammered concrete, becoming diffuse and calm rather than theatrical. The pools sit within this muted illumination, where light reads as atmosphere and time rather than spotlight.







Along the west facade, strip windows hover just above the water surface. They offer a choice: to sink fully into the bath, or to lift the gaze toward valley cliffs nearby, with treetops pressing close to the building’s edge. The effect is intimate rather than panoramic, a form of looking that stays tethered to the body.
A BUILDING SHAPED BY APPROACH
From the bridge to the forest walk to the lifted volume, the springhouse is defined by arrival as much as by programme. It does not compete with the valley’s drama. Instead, it edits it, compressing and releasing views, trading spectacle for sequence, and letting the hot spring experience unfold as a gradual ascent through landscape, light, and steam.



Project Credit
Name: Wulingshan Eye Stone Spring
Location: Hebei, China
Design firm: Vector Architects / @vectorarchitects
Site Area: 600㎡
Construction Period: 2021.03 – 2024.07
Photo: Liu Guowei, Tian Fangfang
More Photos