
Set on the edge of Xinchang Ancient Town in the outer suburbs of Shanghai, Chunli Guesthouse begins with a simple, disarming first impression: rice fields stretching out in every direction. That openness, equal parts calm and expansive, becomes more than a view to borrow. It becomes a temperament to build with. The project positions itself as a quiet partner to the agricultural landscape, shaping a guesthouse that feels less like an object placed in the field and more like a device for noticing it.

Chunli also started with an unusual brief. Unlike many branded guesthouse developments, where experience is predetermined by template and checklist, the owner asked for something looser and more trusting. The early requirements were spoken rather than diagrammed: meet the necessary room count, resolve the public functions, and make meaningful use of outdoor areas and rooftop terraces. That openness gave the designers room to respond to what the site already had, and what it refused to become.

TWO RURAL HOUSES, ONE CONTEMPORARY STAY
The existing buildings were two independent, self built rural houses. Their shapes and interior logic did not align with the expectations of a modern guesthouse, yet demolition would have erased the very texture that made the place believable. TEAM BLDG approached the renovation as a negotiation rather than a replacement. The aim was to preserve as much as possible, avoid drastic structural disruption, and adapt the given conditions into a new program.

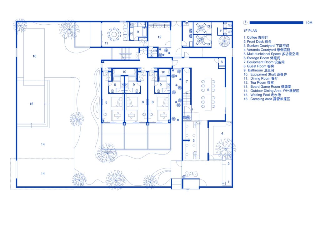
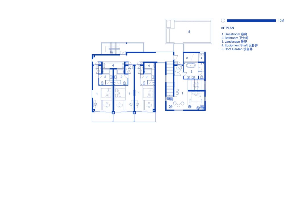
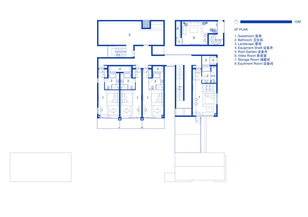
Within those constraints, the project is reorganised to accommodate 11 guest rooms, alongside composite public functions including a banquet hall and a mahjong room. The ambition is not to disguise the origin of the structures, but to let an ordinary rural framework support an updated rhythm of hospitality.
FLEXIBILITY AS A DESIGN ETHIC
Renovations in rural contexts rarely unfold as cleanly as drawings suggest. Approvals shift, construction realities surface, and the site itself introduces compromises that cannot be fully predicted. Chunli’s guiding stance is to accept that uncertainty without lowering its standards.

The guesthouse is imagined as a natural, unforced presence in the rice fields, and that tone demands flexibility. Decisions are evaluated through a practical lens, balancing controllable costs and local building standards with the desire to preserve an architectural idea. In this sense, the project treats adaptability as part of its identity, not as a concession.

TEAM BLDG frames the project through the concept of catching. Not capturing in a possessive sense, but catching as in receiving: catching light, catching wind, catching fragments of landscape, and catching moments of pause. Architecture becomes an intermediary between body and field, a structure that helps the surroundings register more vividly.
Under cost control, the design retains substantial portions of the original fabric, including a gable roof bungalow with a timber structure at the entrance. Rather than competing with the rice field panorama, the building works through connection and framing. Thresholds, openings, and semi outdoor conditions allow the landscape to enter as a sequence of edited views. The guesthouse stands like a catcher in the field, distinct, yet reassuring in its restraint.


Movement is the project’s primary organising tool. Instead of treating circulation as a neutral corridor system, the design makes walking itself a spatial event, a slow choreography between indoor and outdoor rooms.
A perimeter wall stitches the two buildings and their courtyards into one coherent site. Within this rectangle, three new architectural volumes are inserted into three corners, acting as connectors that hold the public programme. These additions accommodate spaces such as the lobby, a pavilion, and the banquet hall. The gesture does more than add area. It clarifies the relationship between public and private zones, and it creates a legible network that links internal rooms to courtyards, terraces, and field facing edges.


In the lobby, the topography is not flattened away. Following the original terrain, the designers introduce a sunken seating area that forms a visual dialogue with a small courtyard. Natural light is drawn into the interior, and garden views become part of the room’s atmosphere. The result is a layered semi outdoor condition that feels both sheltered and porous, an in between space tuned to the site’s pace.


OLD AND NEW, WITH A REASON
Chunli’s renovation is careful about how new elements touch old ones. The design avoids nostalgia, but it also refuses the common renovation impulse to overwrite. The entrance gable roof house, slightly different in character from the newer additions, is largely kept intact. For safety, the original roof is replaced with aluminium, magnesium, manganese panels, a pragmatic upgrade that does not require rewriting the building’s form.

New interventions follow a clear principle: every intervention has a reason. This discipline is visible even in small moments. In one guest room soaking area, the landscaped view outside the window is not simply decorative. It is also a precise piece of problem solving, used to conceal exposed pipes running along the wall. The move speaks to an insistence on integrity, where beauty is allowed to emerge from necessity rather than cover it.

Like many renovation projects, Chunli faced budget pressure and the need to work with local construction methods. The response is neither minimalism as a style nor frugality as a slogan. It is a careful alignment of design intention with what can be executed well.
A fixed furniture system integrates multiple functions within the guest rooms, reducing custom complexity and helping to control overall cost. Construction details are simplified where possible, and materials are selected for durability and ease of implementation. Rather than chasing difficult effects, the project invests in what can be built cleanly, so the final outcome holds the clarity of the original concept.




Chunli Guesthouse is TEAM BLDG’s answer to a particular kind of landscape, and to the memories carried by ordinary rural structures. It is designed not only to meet a programme, but to act as a medium: connecting people with land, past with future, daily life with a wider sense of place.

The idea of catching returns at the end, not as a metaphor to admire, but as an experience to inhabit. Windows frame the fields. Courtyards slow the body. Terraces reopen the horizon. The building watches over the soil and, quietly, over time.
Project Credit
Project name: The Catcher
Design Period: 2023.05 – 2024.04
Construction Period: 2024.02 – 2024.08
Location: Pudong, Shanghai, China
Building Area: 897 SQM
Landscape Area: 773 SQM
Desing Firm: TEAM_BLDG / @team__bldg
Photographs: Hu Siyuan
More Photos