
The Nishizaki House is a private residence for a family of three, situated on reclaimed land within a newly developed residential district in the southern part of Okinawa’s main island. This is a landscape defined less by continuity than by coexistence: housing clusters sit alongside commercial facilities, industrial parks, schools, sports grounds, and fishing ports, each operating at a different scale and rhythm.

To the north, the site borders a relatively calm residential zone. To the south, a wide arterial road introduces the constant presence of traffic and noise. On the east and west, neighboring houses stand in close proximity, reflecting the dense patterns typical of Okinawa’s urbanized areas. Even so, the paradox of vacancy persists, with an increasing number of unoccupied houses scattered throughout the city.

Okinawa’s urban condition exists in sharp contrast to its celebrated natural environment. Majestic landscapes coexist with a chaotic and animated city fabric, further shaped by a climate marked by frequent typhoons and the necessity for disaster preparedness. Within this context, the project confronts a central architectural question: how to establish distance from urban turbulence while sustaining a comfortable, light filled, and well ventilated interior.


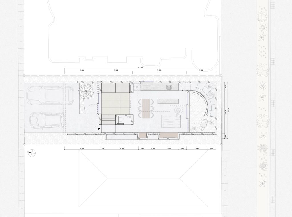
The project responds to a brief that prioritised privacy, daylight, and natural ventilation within a dense urban setting. The house is conceived as an inward oriented dwelling, screened from surrounding sightlines while remaining environmentally open. A compact rectangular footprint follows the site geometry with minimal formal articulation. Spatial performance is driven by section, orientation, and the placement of voids, allowing light, air, and privacy to be managed through architectural structure rather than expressive form.


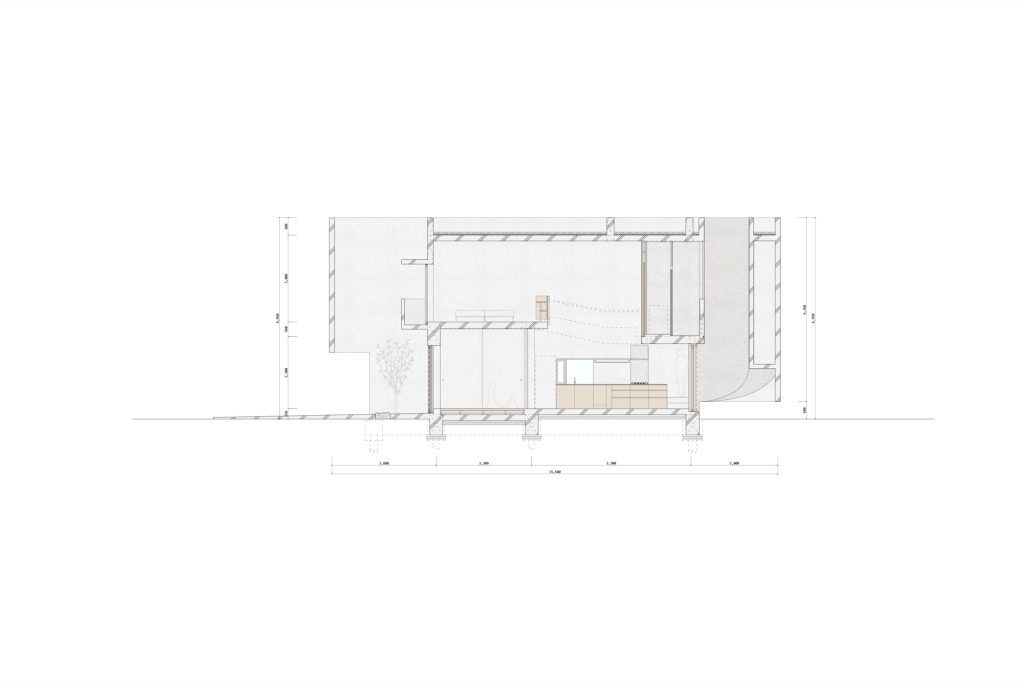
Public spaces are located on the ground floor, maintaining a measured connection to the surrounding neighborhood, while private functions such as bedrooms and bathrooms are placed on the upper level. Rather than relying on walls alone, the house negotiates privacy through a sequence of courtyards and internal buffers aligned along a north south axis.
The northern courtyard faces the quieter residential side of the site and operates as a soft threshold. It offers visual relief from the density of adjacent houses while permitting a gradual and controlled relationship with the exterior. This space filters light and air into the heart of the house without exposing daily life directly to the street.


Inside, the living area flows seamlessly into a tatami room that functions as a parlor. Their continuity maximizes interior sightlines and amplifies the sense of spaciousness within a compact footprint, reinforcing openness without sacrificing intimacy.



In contrast, the southern courtyard is conceived as a stronger, more introverted buffer. Positioned between the town and the staircase room, it forms an almost solid boundary that absorbs noise and stabilizes the atmosphere of the living spaces beyond. This heightened separation allows the courtyard and adjacent rooms to remain calm despite the proximity of heavy traffic.


The staircase itself is treated not merely as circulation but as a spatial device. Slightly larger than a conventional stair, it is designed as a dimly lit room capable of accommodating chairs and daily activities. In doing so, movement through the house becomes inhabitation, and transition spaces acquire their own quiet character.


Most of the furniture and fittings were produced in the architect’s own workshop. This approach extends the architectural concept beyond the building envelope, positioning the house as a proof of concept for expanding local craftsmanship. By prioritizing making over importing, the project proposes a model of architectural autonomy that reduces dependence on external materials while reinforcing regional skills and knowledge.



Through layered buffers, controlled openness, and an attention to craft, the Nishizaki House negotiates multiple dimensions of urban living. It demonstrates how relative peace, climatic comfort, and spatial generosity can be achieved within the constraints of a densely populated and environmentally demanding context.





Project Credit
Project name: House in Nishizaki
Areas (square meters or square foot): 91.50 m2
Completion Year: 2023
Project location: Nishizaki city, Okinawa, Japan
Studio: STUDIO COCHI ARCHITECTS / @studiocochiarchitects
Photo: Ooki Jingu
More Photos