
In Nanping, a historic village in Huangshan where photography and film shape local identity, Atelier Guo has transformed the Cheng Family Ancestral Hall into a hybrid cultural space. Completed in 2025, the project reframes the typology of the ancestral hall, extending its life beyond ritual and memory into a contemporary civic role that accommodates film screenings, reading, and communal gatherings.

Rather than intervening through removal or alteration, the project adopts a precise strategy of addition. Heritage constraints demanded a careful approach, one that preserves the integrity of the original timber structure while introducing new spatial possibilities. The architects developed an independent secondary system that operates alongside the existing building without physically altering it.




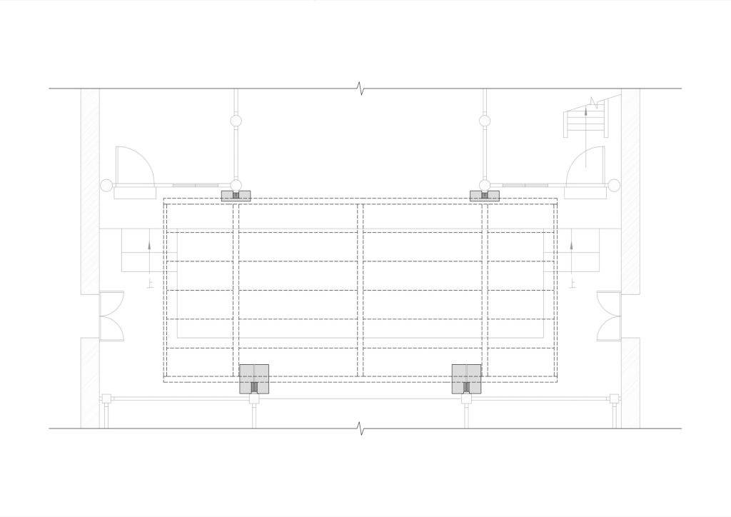
This system draws from the logic of traditional Huizhou construction, where structural frameworks and infill elements are conceived as distinct layers. Reinterpreting this principle, Atelier Guo introduces a Pivoting Panel System aligned with the ancestral hall’s three bay configuration. The panels articulate a gradient of spatial conditions, from the open threshold at the entrance to the more focused interior zones around the courtyard. At the same time, they address environmental concerns, improving ventilation and protecting the original timber surfaces from moisture.



The act of watching a film becomes a spatial event embedded within the architecture itself. Unlike conventional cinemas, where projection isolates the viewer, here the experience unfolds through layers of structure and distance. The existing timber frames become filters through which images are perceived, creating multiple viewing positions.



Visitors may sit within the second bay for an intimate, frontal experience, or observe from the courtyard, where the film is framed by depth and architectural rhythm. Above, an operable shading system allows screenings to take place during the day, extending the usability of the space beyond evening hours.




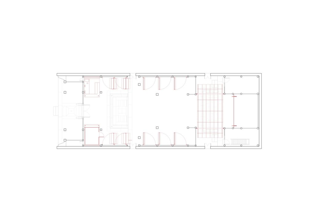
Inserted at the mezzanine level, the library occupies a delicate position within the existing volume. Its furniture system is modular and detachable, designed to respond to the hall’s proportions and high windows without imposing a fixed layout. This flexibility allows the space to shift between reading, gathering, and small scale events.






Material decisions reinforce continuity between old and new. Steel components are carefully wrapped in timber, and furniture proportions were repeatedly calibrated to align with the irregularities of the existing wooden walls. The integration of technical systems is equally discreet, with service lines routed to avoid disruption to the historic fabric.





The project’s construction process extends the design logic into fabrication and assembly. All components were prefabricated off site, then transported and assembled in collaboration with local craftsmen. This method ensured precision while maintaining a close relationship with local building knowledge.
The shading system, incorporating concrete counterweights, is integrated into circulation paths, allowing movement and operation to coexist. Such details reveal a careful orchestration between contemporary intervention and inherited structure.




Village Cinema is conceived not as a fixed program but as an evolving platform. As the pivoting panels open and close, the space shifts between density and openness, between enclosure and continuity with the historic volume. Its vitality depends on use, and the project actively encourages participation from local residents.




Through this approach, Atelier Guo proposes a new model for rural cultural infrastructure, one that balances preservation with transformation. The project does not treat heritage as a static artifact, but as a framework for new forms of collective life, where cinema, reading, and everyday gathering coexist within a shared architectural narrative.

Project Credit
Project name: Village Cinema
Location: Nanping Village, Huangshan, Anhui, China
Completion year: 2025
Gross built area: 323 sqm
Design firm: Atelier Guo / @atelierguo
Photography: Qingshan Wu / @wuqingshan.archphotographer
More Photos