
In downtown Miami, a compact apartment is reimagined as a fluid interior where curtains replace walls and daylight becomes the primary architectural material. This space perfectly captures the essence of minimal Miami apartment curtain design.
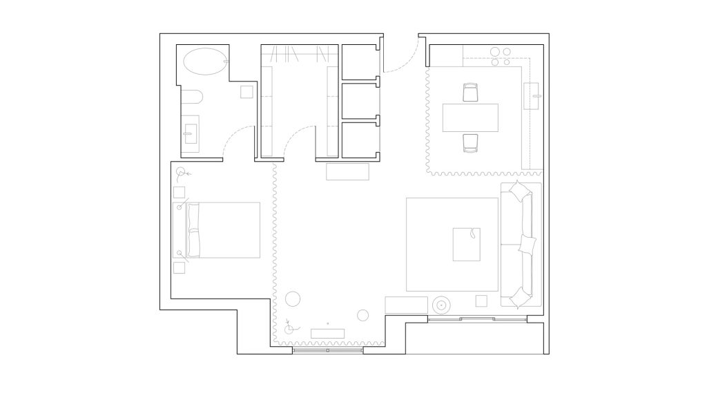
Set within a residential building in downtown Miami, this 903 square foot apartment proposes a restrained yet deliberate spatial strategy grounded in essentialism. The design adopts an open plan logic in which domestic functions dissolve into one another, encouraging a slower, more reflective mode of living. Rather than relying on partitions, the project introduces continuity as its defining condition, allowing space to be perceived as a single, uninterrupted field shaped by light.

Daylight becomes the central organizing force. Carefully calibrated to the position of existing windows, the layout ensures that natural light travels evenly across the interior. The result is an atmosphere that feels both expansive and quiet, where illumination softens boundaries and subtly directs movement.



Instead of fixed walls, curtains are deployed as flexible spatial devices. These soft thresholds allow the apartment to shift between openness and enclosure, responding to changing uses throughout the day. At times, the interior reads as a continuous volume. At others, it becomes a sequence of defined zones structured by occupation and activity.

This approach introduces a dynamic relationship between inhabitant and space. The act of drawing or opening a curtain becomes a daily ritual, transforming the apartment into a living diagram that adapts to routine, privacy, and social interaction.

The material palette is deliberately reduced. White surfaces dominate, amplifying light and reinforcing a sense of calm. Doors are frameless, merging seamlessly with the walls and defined only by fine seams. Walls meet the concrete floor without baseboards or reveals, emphasizing precision and continuity.
The kitchen is conceived as a quiet backdrop, with no visible hardware interrupting its surfaces. In the bathroom, micro cement flooring extends into the bathtub area, where waterproof paint maintains the same visual continuity. Each decision eliminates visual noise, allowing the space to remain legible and composed.



Furniture is selected with restraint, supporting both mental clarity and physical comfort. The interior avoids excess, aligning with a broader ethos of reduced consumption and environmental awareness. By limiting objects to what is essential, the design lowers material demand while fostering a more attentive relationship between inhabitant and environment.






Artwork is introduced sparingly, acting as a point of emotional resonance. Rather than decorating the space, these elements anchor memory and personal association, enriching the otherwise minimal setting.
The apartment operates between two states. In solitude, its quiet openness encourages introspection, allowing the inhabitant to withdraw into a focused and contemplative condition. In moments of gathering, the same openness supports social interaction, turning the space itself into a shared field of attention.



Through minimal means, the project redefines domestic space as an environment shaped as much by absence as by presence, where light, movement, and perception become the true architectural elements.
Project Credit
Project name: Miami Apartment Design
Design firm: LENKA ILIC ARCHITECTURE / @liadpc
Location: Miami, USA
Year: December 2025
Photo: Danijela Pantic, Lenka Ilic