
In Kamakura, Japan, the architectural group AATISMO has completed Haniyasu House as their own residence, shared with their parents, both ceramic artists. Conceived as a two family dwelling at the edge of a yato valley, the project transforms a modest wooden house from 1967 into an earthen settlement where living and making remain inseparable.

Set against steep cliffs carved with horizontal cave tombs known as yagura, the site carries an almost geological presence. Rather than impose a new architectural object onto this terrain, the architects chose to work with earth itself as both theme and medium. Soil from the land, bisque fired clay from the father’s ceramic practice, and metal powders reclaimed from a workshop were layered, poured and oxidised to produce walls that read less as constructed surfaces than as material accumulations shaped by time.
A HOUSE REBORN AS SETTLEMENT
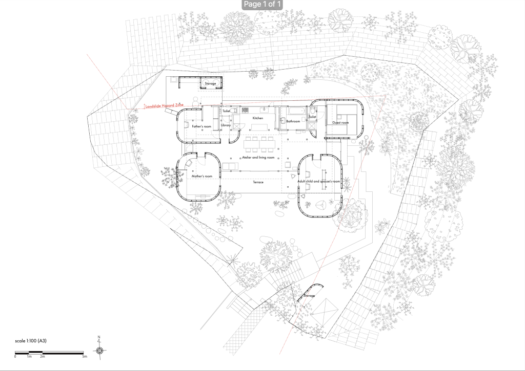
The original house, a single storey wooden structure, stood partially within a high risk zone at the base of the slope. After a typhoon triggered a landslide that blocked access and exposed its vulnerability, the most precarious portion was removed to create distance from the cliff. All interior walls and ceilings were stripped away, deteriorated sill plates replaced, and the existing columns retained to support the tiled roof.
What remains is a large open volume that reconnects the house to its surroundings. At its four corners, new additions rise like compact masses of earth emerging from the ground. These volumes are not treated as distinct objects but as extensions of the land, their surfaces built up in successive layers of site soil, fired clay fragments and plaster mixed with iron and copper powder. Oxidation continues to alter their colour, allowing the building to evolve under wind and rain.
Structurally, the corner additions also concentrate and distribute seismic shear walls, compensating for the original shallow foundations. The architecture thus intertwines material experimentation with pragmatic reinforcement, binding poetic intention to technical necessity.
LIFE AND WORK IN ONE CONTINUOUS FIELD
The house is organised as a contemporary analogue of a primordial dwelling. Each addition shelters an individual domain for working and sleeping, cave like and enclosed, while the central space operates as a plaza for gathering, eating and conversation.


The northwest room belongs to the father and serves primarily as a pottery studio. Finished in deep brown tones derived from site soil, it opens toward the landscape below the cliff and connects directly to the kiln and outdoor glazing area. The entire making process unfolds within this zone, collapsing distinctions between studio and domestic space.

To the southwest, the mother’s room is calmer and more restrained. Lime mixed with bisque fired clay defines its walls, while wooden floors and built in storage lend it a measured clarity.


The southeast addition houses the architects themselves. The largest of the four, it features cantilevered desks displaying furniture and lighting pieces developed by the studio. Walls are coated with three layers of plaster composed of local soil and ceramic clay. Here, the floor level is lowered and finished as an earthen surface, introducing tactile variation and reinforcing the sense of inhabiting ground rather than occupying a platform above it.




The fourth addition becomes a guest room conceived as a tea room. Four and a half tatami mats, a tokonoma alcove and a small nijiriguchi entrance establish an intimate ritual scale. Clay rich soil mixed with bamboo charcoal darkens toward the ceiling and is lit from above by a skylight, while washi paper tinted with charcoal softens the wall at the entrance.





EARTH AS MEDIUM AND MEMORY
The name Haniyasu House refers to a deity in Japanese mythology associated with earth, soil and pottery. Hani is an archaic word for clay. The project can be read as an offering to this figure, not in a literal sense but as an architectural gesture that seeks continuity with land and craft.



Throughout the process, experimentation preceded form. Clay rich soil was crushed, fired in the father’s kiln, glazed and scorched. Discarded clay from the studio was bisque fired and layered back onto the walls. Iron and copper powders, industrial byproducts, were poured into plaster and allowed to oxidise. Chance and time became collaborators.

Kitchen, bathroom and service functions are consolidated along the north side into a single volume. A loft above stiffens the structure horizontally, while its ceiling void conceals building services. Even here, plaster mixed with site soil defines surfaces, and large openings extend everyday rituals outward.

In Haniyasu House, architecture resists the temptation of iconic form. Instead, it regains what the architects describe as material force. By returning to earth as substance and memory, the project reframes the house as a vessel in which making and living coexist, and in which human presence is measured not by dominance over land but by immersion within it.


Project Credit
Location: Kamakura, Kanagawa, Japan
Desogn firm: AATISMO / @aatismo
Site area: 544.80 m2
Building area: 132.07 m2
Total floor area: 132.07m2 (Existing 86.06 m2, Extension 46.01 m2)
Photo: Shinya Sato / @shinyasato_hello
More Photos