
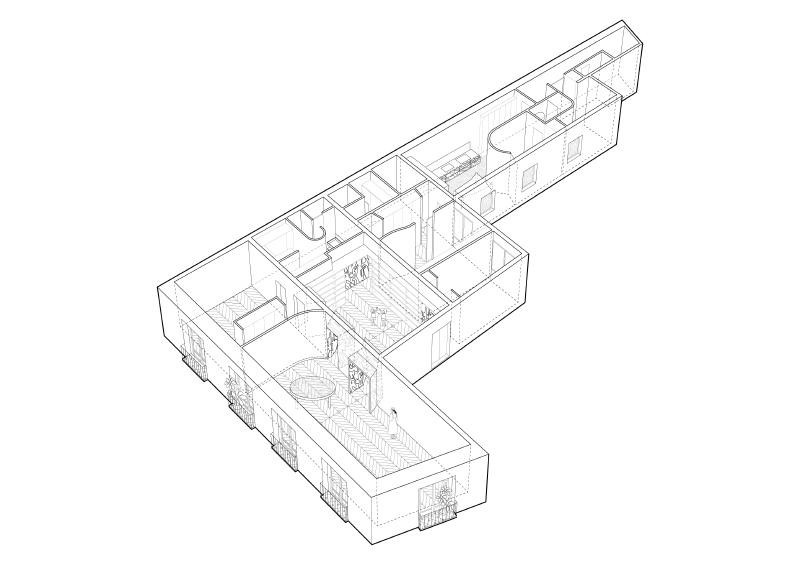
In Madrid’s historic centre, where the city tightens into narrow, winding streets and small squares arrive as sudden clearings, a late 18th century residential building continues to hold its ground. Facing a modest plaza and set beside a quiet convent, the five-storey structure reads as a familiar local type: brick and timber, disciplined in elevation, porous in section, and organised around courtyards that pull daylight deep into the block. It is the kind of Madrid domestic archetype that would later echo through the 19th century expansion of the city.
Along the street, the building’s character is carried by a mixed structure of brick load-bearing walls and timber framing, laid out in parallel bays. Plaster and brick façades sit above a mountain-granite base, while vertical openings establish a steady cadence across the elevation. Wooden balconies and wrought-iron bay windows punctuate the rhythm with a lighter, more ornamental note, details that still speak clearly of their period without slipping into nostalgia.
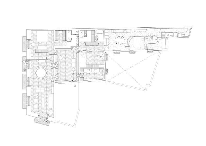
Inside, the renovation begins with a piece of domestic infrastructure that behaves like architecture. A large library anchors the entrance and becomes the project’s spatial hinge, directing movement and defining the apartment’s two atmospheres. On one side, the night area turns inward toward the calm of the courtyard. On the other, the day spaces face the street and the square, tuned to the city’s noise, light, and tempo. The library does more than store books; it choreographs how the home shifts from private to public, from hush to activity.






Materially, the intervention respects the original bones while introducing moments of deliberate recalibration. Wooden floors and classically inflected joinery provide continuity with the building’s heritage, but they are set against contemporary textures and patterns that register as distinctly of the present. Curved and folded forms create soft transitions between rooms, turning circulation into a sequence of small spatial events. From this compositional core, routes branch out and reconnect, opening up views that keep pulling attention back to key living spaces oriented toward the square.




In the kitchen and bathrooms, the palette shifts into a more ceremonial register. Continuous surfaces are paired with metal details and Portuguese pink marble, lending a classical gravity that plays against sharper modern elements and brighter colour notes. The effect is not pastiche, but tension: a measured contrast that energises everyday routines without overwhelming the apartment’s historical frame.


The project’s most convincing quality is its refusal to treat heritage as a museum condition. Instead, it builds a constant dialogue between the residence’s original elegance and new insertions that slightly distort, sharpen, and reframe what was already there. The result is a renovation that preserves the spirit of a historic Madrid apartment while making space for contemporary life, one that feels connected to the courtyards, the street, and the city beyond.




Project Credit
Name: CASAMILC
Location: Spain, Madrid
Designe Firm: Lucas y Hernández-Gil / @krestadesign
Completed: 2024
Photo: José Hevia