
Set within the central town of the Aranya Jiulong Lake community in Guangzhou, Aranya Jiulong Lake Community, YIN HOTELS occupies the former Grand Building of the Princess Hotel, a structure defined by its European stylistic lineage. The renovation, led by PLAT ASIA, approaches the building not as a static artifact but as a living framework in which memory, structure, and contemporary hospitality can intersect.

The surrounding townscape is dense and programmatically diverse, shaped by a mixture of commercial activities and social spaces that sustain a young and active atmosphere. Within this context, the project establishes continuity rather than contrast. The original decorative layers were removed to reveal the clarity of the underlying structure, allowing the architecture to regain its spatial legibility. The intervention preserves the all suite configuration, maintaining the building’s original logic while opening it to reinterpretation.




Material and atmosphere extend this dialogue with the past. Warm tonal references from the façade are drawn inward, translated into tactile interior surfaces. Architectural elements are abstracted into textures that can be touched and inhabited, while timber furniture introduces a sense of depth and temporal resonance. The result is an interior that does not replicate history, but allows it to remain perceptible through material presence and spatial proportion.







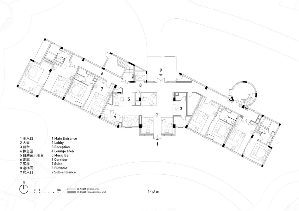
YIN HOTELS is conceived entirely as a suite based hotel, offering five room typologies that accommodate families and small groups. Each unit is structured to maintain visual continuity between bedroom and living area, with sliding partitions enabling flexibility between openness and privacy. The spatial narrative of the guestroom is defined by a subtle reconfiguration of intimacy. The bathtub is positioned between the bed and the window, transforming a functional element into a focal point that frames both interior life and outward views. This arrangement dissolves conventional boundaries between bathing, resting, and observing, producing a layered domestic landscape within the hospitality setting.




Music is embedded as part of the experiential framework. Each suite includes a vinyl record bar, while a self service listening area in the lounge extends this atmosphere into the shared spaces. Sound becomes a temporal medium, marking presence and memory within the journey of the guest, and reinforcing the hotel’s ambition to construct experience through sensory continuity rather than spectacle.



The project integrates sustainability not as an applied layer, but as an underlying design logic. Existing elements such as the original wooden entrance door are retained, while the palette of materials prioritises natural and environmentally responsive resources. Industrial finishes are reduced in favour of tactile surfaces that age over time, allowing the building to evolve alongside its use.


Interior elements are deliberately simplified, reducing visual noise and enabling adaptability. This restraint allows the spaces to accommodate future transformations without losing coherence. The lobby is articulated as a series of smaller zones defined by furniture and partitions, slowing circulation and supporting a more measured rhythm of occupation.

This approach extends to a broader understanding of longevity. By respecting the building’s origin while anticipating future scenarios, the design establishes a framework in which spatial use, memory, and atmosphere can continue to accumulate. The hotel becomes not only a place of temporary stay, but a setting in which time is experienced, recorded, and reinterpreted.


YIN HOTELS positions itself as a contemporary art hotel grounded in continuity. It constructs a dialogue between architecture and interior, between past and present, and between physical space and emotional experience. Within this framework, hospitality is understood as a process of inhabiting time, where rest, perception, and memory converge.
Project Credit
Project name: Aranya Jiulong Lake YIN HOTELS
Location: Aranya Jiulong Lake Community, Huadu District, Guangzhou, China
Interior area: 1800 sqm
Architect: PLAT ASIA / @platasia
Photography: Zhu Yumeng / @yumeng_zhu_coppakstudio
Completion: December 2024
More Photos