
In Beijing, Western Academy of Beijing’s music department has been reconfigured by studio vapore into a spatial system where pedagogy, acoustics and atmosphere converge. Conceived as part of a broader campus upgrade, the project departs from the neutrality of conventional classrooms, instead constructing an environment where music becomes both a functional requirement and a perceptual condition.
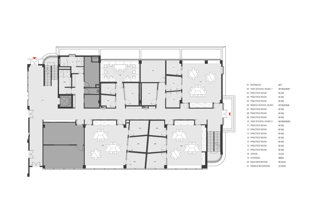
The intervention reorganises a sequence of classrooms along a shared corridor, each paired with a cluster of adjacent practice rooms. This arrangement establishes a compact yet flexible framework that accommodates individual learning, small group rehearsal and collective teaching simultaneously. Glass partitions mediate between spaces, maintaining visual continuity while enabling supervision, and allowing multiple layers of activity to unfold in parallel.

Rather than treating acoustics as a technical afterthought, the project positions sound as a primary architectural medium. Developed in collaboration with Delhom Acoustics, acoustic treatments are embedded across walls, ceilings, floors and custom-built elements to control reverberation and limit sound transmission.
Yet the classrooms are not hermetically sealed. The design calibrates a degree of acoustic permeability, allowing fragments of music to circulate through the corridor. As one moves along this shared spine, overlapping sounds from adjacent rooms produce a continuous sonic field, extending the presence of music beyond the boundaries of individual spaces and reinforcing the collective identity of the department.


Colour operates as a second organisational system, structuring both navigation and spatial character. Three principal classrooms are assigned distinct tonal identities—red, orange and yellow—corresponding to different age groups. These hues are legible from the corridor, marking thresholds and guiding movement through the department.




Within the classrooms, the teaching zones remain restrained, while a band of saturated colour along the window side establishes a visual link to the associated practice rooms. Lighting is kept even and diffuse, supporting concentration and clarity.

By contrast, the practice rooms intensify the chromatic experience. Each space is fully immersed in its assigned colour, articulated through felt panels, textiles and three-dimensional acoustic elements. Variations in tone and material generate depth, while warmer lighting creates a more intimate and focused atmosphere for rehearsal. The acoustic tiles, carefully shaped and positioned, not only modulate sound but introduce a rhythmic visual language that subtly echoes musical notation and composition.




Through the integration of layout, acoustics and colour, the renovation transforms previously generic interiors into a cohesive environment that reflects the nature of musical practice itself. Individual focus and collective experience are no longer separated conditions but coexist within a carefully tuned spatial system.
In this project, architecture does not merely contain music. It participates in its production, shaping how it is heard, shared and experienced across space.
Project Credit
Project name: Music Classrooms at The Western Academy of Beijing
Location: Beijing, China
Architecture and Interior Design: studio vapore / @studiovapore
Area: 700 square metres
Photo: Vincent Wu, Shawn Koh
More Photos
Founded in 2021 by Italian architect Erica Borsa, studio vapore operates across architecture, interiors and product design. Based in Beijing, the practice combines narrative thinking with technical precision, with a particular focus on educational environments. Its work explores how spatial design can support new forms of learning, often through the integration of sensory experience, material articulation and programmatic flexibility.