
At the edge of Xianjing Village, beneath the mountains of Shenxianju, a disused primary school has been reimagined as Qingyi Lodge, a residence and creative base for young artists. The project unfolds within a landscape long associated with poetic imagination, where mist, water, and mountain silhouettes define everyday life. Rather than imposing a new architectural identity, the intervention works with what remains, allowing the building to absorb new uses while maintaining its quiet presence within the village fabric.

Xianjing Village sits near the northern entrance of the Shenxianju Scenic Area, with views toward Fanzeng Peak. A stream flowing down from the mountains structures the settlement, around which houses are arranged in a southeast orientation. The former primary school, built in the late twentieth century, was one of the few buildings aligned toward the distant peak.



Although modest in construction and partially deteriorated, the building held collective memory for the village. The brief called for its transformation into an artists’ dormitory, supporting a broader initiative to reposition the village as a destination for sketching, learning, and cultural exchange. The design begins with this dual condition of memory and landscape.


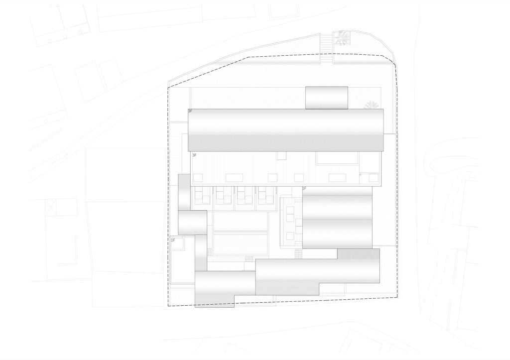
The intervention retains the primary structure while reworking its relationship to the surroundings. The original classrooms are converted into individual guest units, each opening toward the south through large sliding doors. The former external corridor becomes a continuous balcony, extending each room into the landscape and framing views toward Fanzeng Peak.




The roof, previously damaged, is removed and replaced by a terrace that amplifies the building’s visual connection to the mountains. On the north side, a new steel corridor introduces an alternative circulation system, separating access from the more open southern façade.
Light, view, and privacy are carefully negotiated. Partial walls and skylights define areas for drawing, ensuring stable natural light while maintaining visual openness. At ground level, each unit extends into a small courtyard, offering a more intimate spatial condition.




A new multi functional hall is inserted at the southeast edge of the site, slightly sunken to reduce its visual impact. This space supports exhibitions, gatherings, and informal exchanges, connecting with an adjacent building that now operates as a café and restaurant.



Along the former playground boundary, a sequence of thin, curved metal roofs redefines the threshold between the lodge and the village. These structures filter views, conceal everyday clutter, and frame selected scenes such as the persimmon tree and distant mountains. Beneath them, layered corridors emerge as shared spaces where villagers and visitors intersect, extending the social life of the village into the project.


The removal of parts of the original wall opens visual connections toward the village square, while newly inserted walls of varying heights articulate a porous boundary condition.


The northern entrance is reoriented toward a cluster of ancient trees and a small shrine, both significant within the village’s cultural landscape. Here, two water courtyards mediate the transition from village to lodge. Their reflective surfaces create a soft boundary, while a subtle change in level introduces a sense of withdrawal and quiet.



A cluster of banana plants discovered on site becomes a central motif. Their seasonal cycle of decay and regrowth resonates with the building’s own transformation. Preserved and integrated into the design, they introduce an organic asymmetry and anchor one of the rooms as an artist’s studio.


Circulation through the project is conceived as a continuous sequence rather than a fixed route. From the entrance, visitors move across water, through the former stair hall now functioning as an open foyer, and into the courtyard. From here, paths unfold across corridors, terraces, and shared spaces, gradually leading upward to the roof.

This progression is marked by subtle shifts in light, level, and enclosure. Curved roofs rise and fall, stone paths ascend and descend, and views open and close. The final destination, the rooftop terrace, offers a panoramic view of the Shenxianju mountains, reestablishing the relationship between building and landscape at its broadest scale.

Project Credit
Project name: Qingyi Lodge – Renovation of the Former Wanghu Primary School
Location:Xianjing Village, Baita Town, Xianju County, Zhejiang Province, China
Design: HsuDu Architects
Completion year: 11.2025
Photo: Liang Shan, HsuDu Architects
More Photos