
Set on the outskirts of Santiago, a colonial town at the foothills of the Sierra Madre Oriental, House in Santiago by S-AR unfolds as a restrained yet spatially complex retreat. The project responds to a landscape long shaped by weekend dwellings and rural constructions, where stone walls and adobe volumes remain embedded in collective memory. Rather than asserting itself, the house withdraws into this context, aligning with the material and visual continuity of its surroundings.

From the street, the house presents a largely opaque façade, punctuated only by a series of doors. Built with local stone, its mass appears almost anonymous, extending the language of existing rural structures. This deliberate discretion allows the building to recede into the terrain, maintaining a quiet dialogue with the site rather than competing with it.
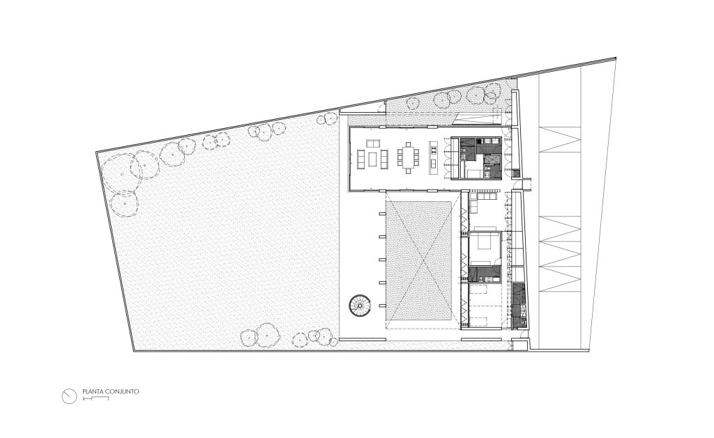
Inside, the spatial condition shifts. The house opens through a sequence of patios, glazed planes, and layered transparencies, producing an interconnected field of interior and exterior spaces. The programme is organized around a central service core that acts as a hinge, dividing and simultaneously linking the public and private domains.




The private areas are shielded from the street by thick stone walls, while a permeable metal lattice mediates views toward the central patio. In contrast, the public spaces extend outward, engaging directly with the garden. A covered terrace becomes the focal point of this relationship, offering shade and continuity between indoor living and outdoor leisure, complemented by a pool and grill.


The house is constructed primarily from reinforced concrete, articulated through a series of walls and corbels that reveal different material treatments. Floors and سقroof planes merge with these elements to form a continuous structural envelope. A single metallic column interrupts this otherwise monolithic composition, marking a subtle inflection that recalls the internal logic of the structure.



Within this framework, glass enclosures and open patios punctuate the mass, establishing a dynamic interplay between enclosure and openness. As daylight shifts, light and shadow trace across surfaces of stone, wood, steel, and ceramic, activating textures and reinforcing the temporal dimension of the space.


Movement through the house is defined by a spiral staircase and a ramp that ascend toward the roof terrace from multiple points. This elevated platform becomes the project’s culminating spatial moment. From here, the surrounding mountains unfold in full view, inviting prolonged observation and quiet reflection.
This vertical sequence intensifies the relationship between architecture and landscape, generating a continuous exchange between interior and exterior, between built form and natural horizon, between inhabitant and environment.




Project Credits
Project: House in Santiago
Architecture: S-AR / @stacionarq
Construction area: 470 sqm
Project year: 2017
Construction year: 2021
Photography: Ana Cecilia Garza Villarreal
More Photos