
On Hintze Ribeiro Street in Leça da Palmeira, a quiet urban condition persists. Low rise buildings, small shops, and a rhythm of daily life shaped by proximity to the sea define a neighborhood that resists excess. It is within this measured context that a new residential building takes form, aligning itself with the street’s understated continuity while introducing a precise architectural order.


The project begins not with form, but with clarity of intent. The client approached the building as a commercial product grounded in the realities of the market, defining strict spatial parameters and demanding a construction logic that is both rational and efficient. This initial framework set the tone for the architectural response. Rather than resisting these constraints, the design embraces them, seeking to extract value through precision, coherence, and a disciplined use of means.




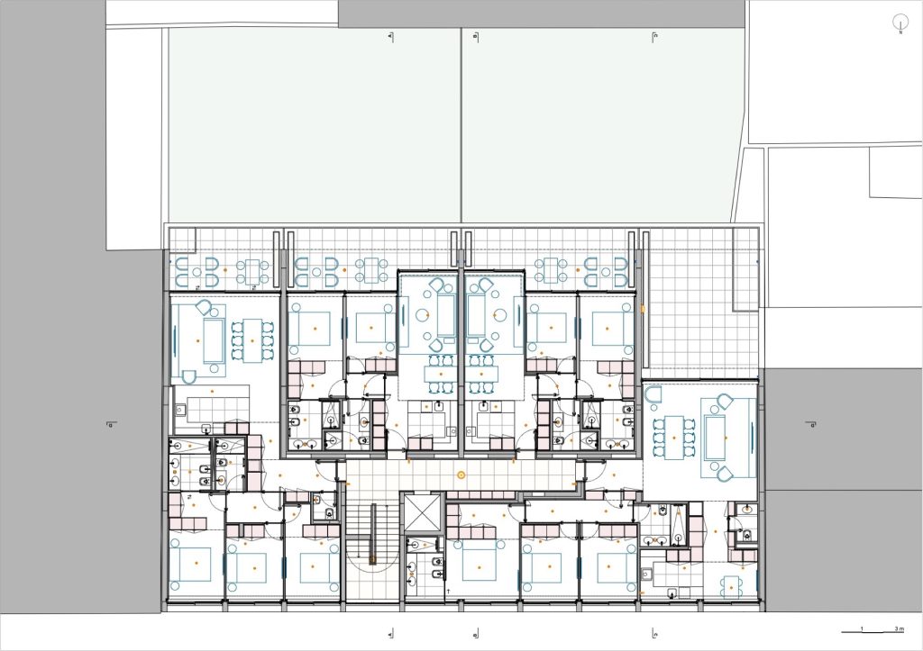
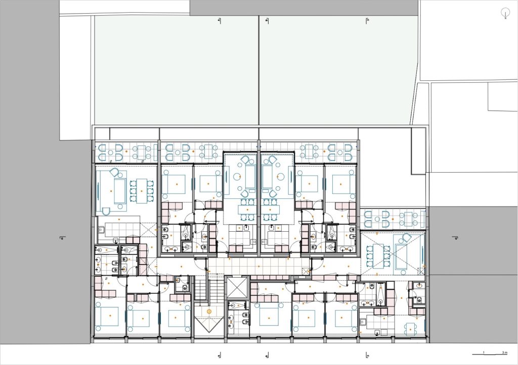
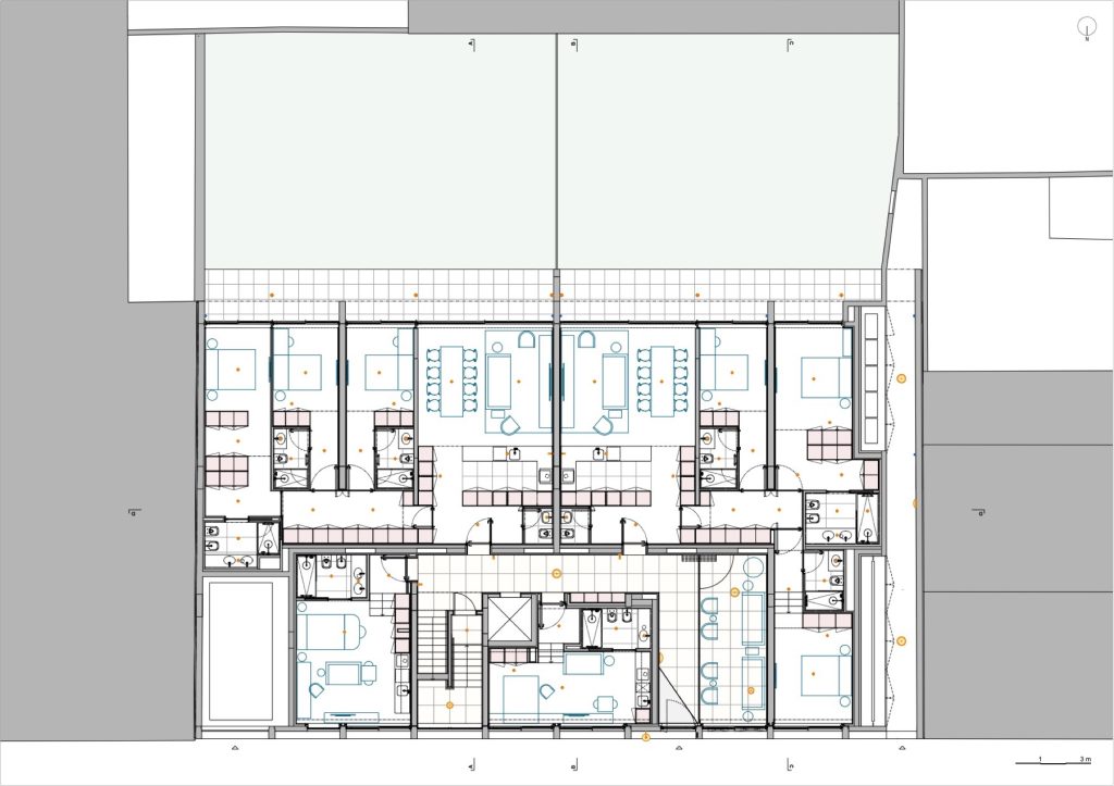
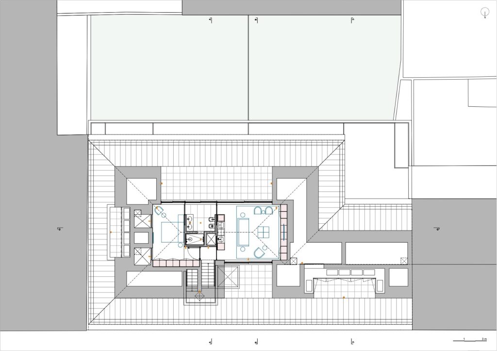
A rigorous modular system organizes the building from its subterranean garage to the roofline. This structural grid establishes both order and flexibility, allowing the program to unfold with clarity. Bedrooms and vertical circulation are consistently aligned along the north facing facade toward Hintze Ribeiro Street, reinforcing a controlled interface with the urban edge. In contrast, the social spaces open inward, oriented toward the center of the block, where light, privacy, and continuity shape domestic life. This dual orientation recalls a familiar urban typology, reinterpreted through a contemporary lens.


Exposed concrete defines the building’s primary expression. Its use is not merely aesthetic, but rooted in construction efficiency. The process is direct: formwork is assembled, concrete is poured, and once the molds are removed, the facade stands complete. This approach reduces layers and simplifies execution, aligning with the project’s rational ethos. While prefabrication was considered during development, it ultimately remained unrealized, leaving the in situ process as the defining construction method.




Brick emerges later as a complementary material, introduced as cladding to articulate the facade and resonate with the client’s envisioned language. Its presence softens the rigidity of concrete while maintaining the overall discipline of the composition.




The resulting building carries an austere and restrained character. Its architecture avoids spectacle, instead asserting a quiet rigor and anonymity that aligns with its typological role. In a context defined by continuity rather than exception, the project positions itself as a precise and consistent addition to the urban fabric.













Project Credit
Project name: Edifício De Habitação Multifamiliar Hintze Ribeiro
Architecture Office: Helder Da Rocha Arquitectos / @helderdarocha.arquitectos
Location: Leça da Palmeira, Portugal
Year of conclusion: 2026
Total area: 2814.50m2
Photo: Ivo Tavares Studio / @ivotavaresstudio
More Photos