

At the periphery of Tulum, where rapid tourism development has intensified pressure on local housing, this residential project addresses a growing imbalance. Designed to provide affordable rents for workers in the hotel and restaurant industries, it responds directly to the displacement caused by rising property values, offering a stable living environment embedded within the landscape rather than isolated from it.

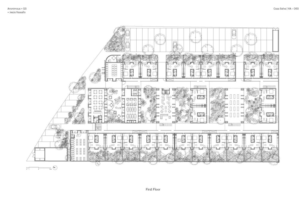
Comprising 200 apartments alongside shared amenities, gardens, and retail spaces, the development balances efficiency with a measured sense of monumentality. Its scale is substantial, yet carefully moderated through spatial and material strategies that dissolve its presence into the surrounding jungle.



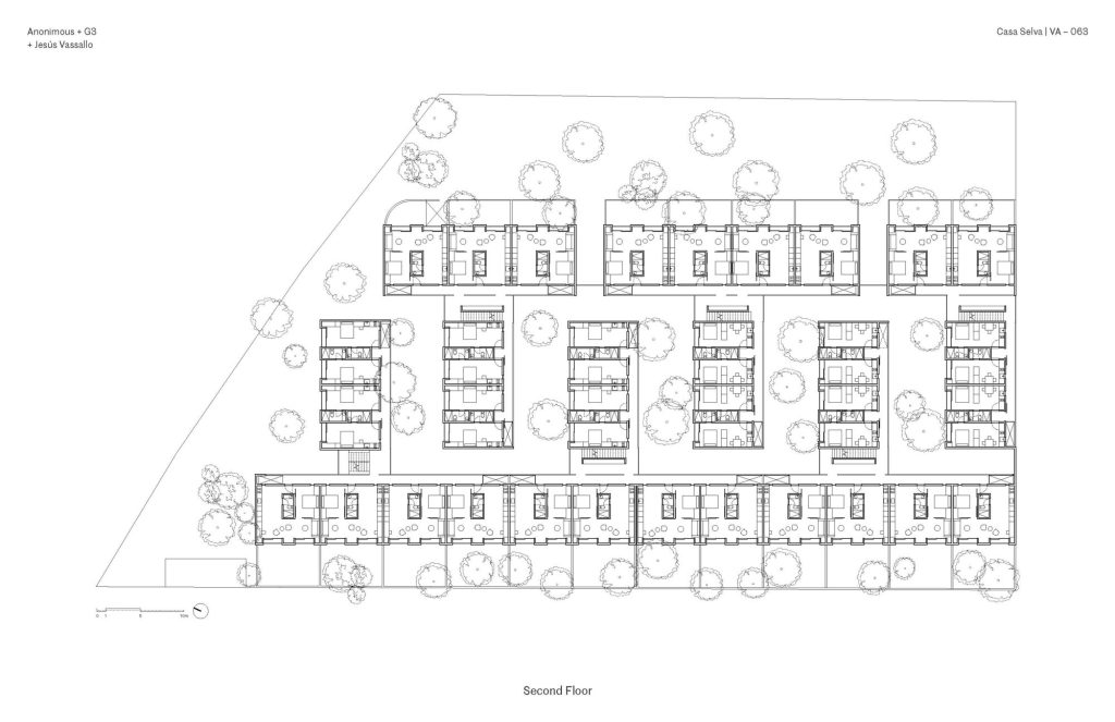
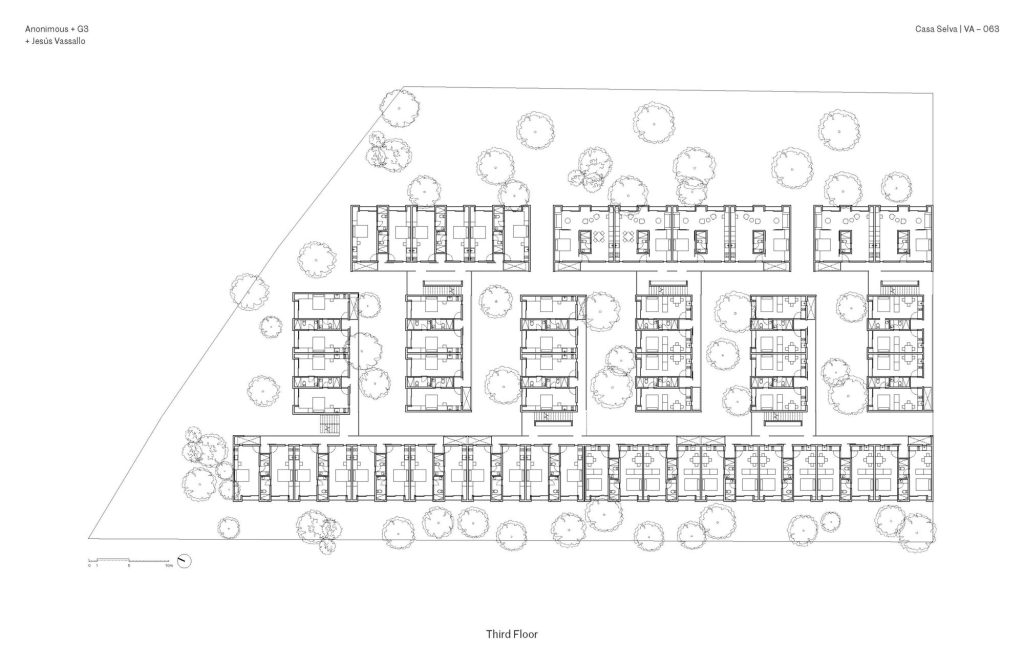
Set on a densely vegetated site, the project organizes a series of four storey blocks into an interlocking comb-like configuration. Between them, a continuous network of courtyards structures both circulation and social life. These open spaces preserve the existing tropical vegetation, including native palms and deciduous trees, which act as natural buffers between units while softening the relationship between architecture and road.




Rather than clearing the site, the design works with its ecological condition, allowing the forest canopy to shape both microclimate and spatial experience. Light filters through foliage, creating a shifting pattern that informs the massing and coloration of the buildings.


The architecture is calibrated to respond to this filtered environment. Facades and circulation corridors are lined with porous screens, recalling the logic of brise soleil systems while adopting a finer, more tactile expression. These elements temper sunlight, enhance privacy, and contribute to passive environmental control.




Internally, each apartment is conceived as a simple linear volume, a spatial tube that establishes a direct relationship between interior life and the surrounding vegetation. This clarity of plan allows for cross ventilation and a continuous visual connection to the landscape, reinforcing a sense of openness despite the project’s density.






The organizational strategy combines aspects of modern open block planning with the intimacy of traditional courtyard typologies. This hybrid approach enables higher density while maintaining privacy, airflow, and access to greenery. The result is a residential environment that avoids the isolation often associated with large scale housing developments.


At ground level, pedestrian pathways connect the courtyards into a sequence of shared spaces supporting daily activities, from informal work to exercise and relaxation. These collective areas extend the domestic realm outward, encouraging interaction without imposing it.






Above, a rooftop swimming pool offers a contrasting spatial experience. Elevated within the tree canopy, it provides a moment of release while framing expansive views across the tropical landscape, transforming the roof into a communal destination.



Through its integration of landscape, climate, and program, the project repositions affordable housing as a spatial and environmental asset rather than a constraint. It proposes a model in which density, economy, and quality of life coexist, offering a sustainable response to the pressures shaping contemporary Tulum.


Project Credit
Project name: Casa Selva – Housing for hospitality workers
Built area: 70,000 sqf
Architects: Jesús Vassallo, Alfonso Jiménez Enciso, Alfonso Garduño
Location: Tulum, Quintana Roo, Mexico
Year: 2026
Photo: Cesar Bejar / @cesarbejarstudio
More Photos