Author’s Room Hotel is a mixed use cultural and hospitality project located at Aranya Jiulong Lake on the outskirts of Guangzhou. Designed for the cultural brand naive IMAGINIST the building brings together a bookstore a cafe and light dining spaces and a small scale hotel within a single four storey structure overlooking the river and surrounding mountains. Positioned approximately one hour from the city centre the project sits between the lake landscape and a cluster of shared community facilities and responds to this condition by operating as both a public cultural destination and a place of retreat.

The architectural concept draws from the Qi Lou typology found in the historic districts of Guangzhou where ground floor commercial spaces and upper level residences are organised beneath continuous colonnades. This spatial logic is reinterpreted to organise public programmes on the ground floor while hotel rooms occupy the upper levels. A continuous colonnade wraps the building mediating between interior spaces and the public realm. Rather than enclosing the facade with solid walls a series of polygonal columns defines a permeable edge allowing light air and movement to pass freely through the architecture. The exposed grid of columns beams and slabs functions simultaneously as structure and architectural expression making the logic of construction legible from the outside.

The building mass steps back gradually as it rises forming a terraced profile that reduces its perceived scale along the waterfront and creates a changing silhouette when viewed from different angles. On the ground floor retail and dining spaces are set back to create a sheltered pedestrian zone beneath the colonnade where circulation and social activity overlap. Passersby are encouraged to slow down wander and enter through this semi outdoor threshold where the boundary between public space and interior dissolves.


Two double height semi open courtyards are introduced within the structure to bring daylight and greenery deep into the building and to break the repetition of the facade. A central atrium connects the riverfront promenade with the internal pedestrian street reinforcing the project’s public character and allowing movement to flow through the building from multiple directions. These spaces are left intentionally open to interpretation gaining meaning through everyday use rather than fixed programme.





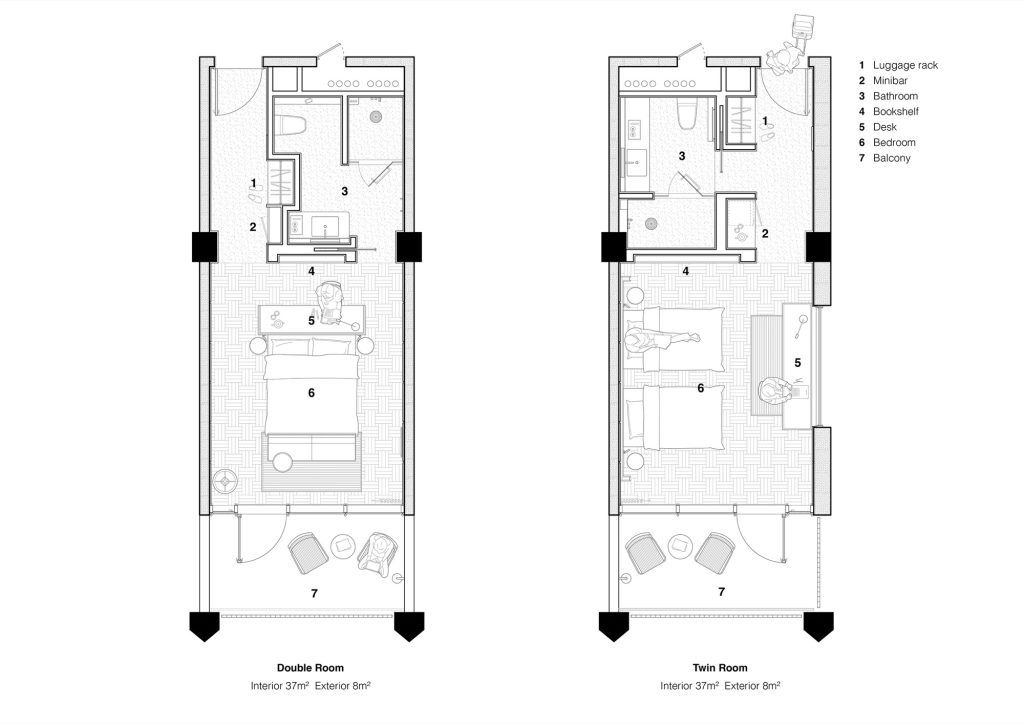
Eighteen guest rooms are arranged across the upper floors all oriented toward the river. Each room opens onto a shaded balcony beneath extended eaves offering direct engagement with the landscape while maintaining privacy from the opposite bank. The colonnade functions as a secondary architectural skin providing shade shelter and visual filtering in response to the subtropical climate.

The primary structure is constructed from red fair faced concrete cast in place to reveal material and structure as a unified whole. The muted red tone recalls earth and aged brick softening the raw texture of concrete and lending the building a warm tactile presence that shifts subtly with light and time. Patterned red copper panels are applied to circulation cores and external staircases introducing contrast and depth through the dialogue between metal and concrete. Together the materials allow the building to stand out against the surrounding greenery while maintaining a relaxed and welcoming atmosphere.




Inside the ground floor is conceived as a continuous spatial sequence rather than a collection of enclosed rooms. The bookstore reception cafe and dining areas flow into one another encouraging informal use and exploration. The interiors of the guest rooms continue the warm material palette with wood textured stone red travertine timber surfaces and concrete brick. Patterned flooring terrazzo inlays and mosaic surfaces subtly reference traditional Guangzhou tiles reinterpreted through a contemporary design language.
Author’s Room Hotel reintroduces walking pausing and lingering as central spatial experiences. By translating the pedestrian oriented logic of the Qi Lou into a contemporary context the project explores how architecture can support everyday encounters and quiet moments of rest. Rather than pursuing monumentality the design focuses on atmosphere and use allowing people landscape and time to shape the life of the building.








Project Credit
Project name: Author’s Room Hotel · Aranya Jiulong Lake Project
Location: Guangzhou, Guangdong, China
Design firm: B.L.U.E. Architecture Studio / @blue_architecturestudio
Site Area: 845.58m²
Building Area: 2315.36m²
Design Period: 01. 2022 – 07. 2024
Construction Period: 10. 2023 – 10. 2025
Photo: Xia Zhi / @xiazhi_pictures, DONG Image, The Wethos
More Photos