Perched at over 6,000 feet on the southern edge of Lake Tahoe, where the city meets the Sierra Nevada mountains, Staggered Cabin proposes a quiet recalibration of the alpine house. Rather than imposing a singular form onto the terrain, the project unfolds as a sequence of volumes that follow the natural incline, stepping gently downward and embedding themselves within the forest.

Originally conceived as a weekend retreat for an Australian couple relocating to California, the house evolved into a permanent family residence. This shift in program is reflected in the project’s spatial logic, where compactness and adaptability replace the episodic nature of a seasonal dwelling. Within a modest footprint, the architecture constructs a continuous relationship between domestic life and landscape, positioning everyday rituals in direct dialogue with the surrounding environment.
The house is composed of four cedar-clad volumes, each capped with a shed roof and slightly offset from the next. This staggered configuration allows the building to settle into the slope while generating a series of protected outdoor spaces. Existing boulders, mature Jeffrey pines, and pockets of sunlight are not cleared but incorporated, becoming active elements in the spatial composition.

This approach minimizes excavation and reduces the impact on the site, allowing the architecture to operate less as an object and more as an extension of the terrain. The resulting courtyards are neither residual nor decorative. They function as intermediate rooms, expanding the domestic field outward and reinforcing a sense of inhabiting the forest rather than observing it.

The dark-stained western red cedar cladding further dissolves the building into its surroundings, echoing the tones of bark and shadow. Above, standing seam metal roofs respond to the alpine climate, engineered to retain snow as insulation during winter months.


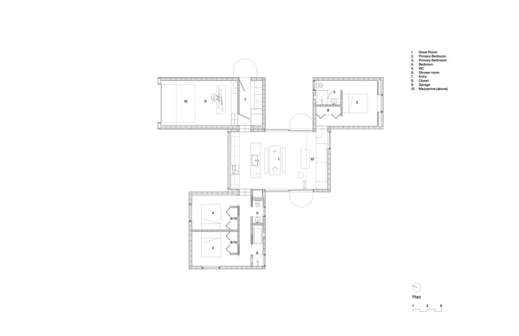
Inside, the house is organized around a central living and dining space that acts as both anchor and connector. From this core, the staggered volumes extend outward, distributing bedrooms and auxiliary functions along the slope. Circulation is minimized, and instead, spatial transitions occur through shifts in level and alignment.

This configuration produces a layered interior condition where spaces are visually and physically interconnected without sacrificing privacy. Views are often oblique and partial, unfolding gradually rather than revealing themselves all at once. The result is a sequence of spatial moments that balance openness with intimacy.

Material continuity reinforces this reading. Douglas fir plywood paneling runs throughout the interior, creating a warm, cohesive envelope. Custom cabinetry, integrated storage, and concealed lighting maintain a sense of order and restraint. The pitched roofs allow for mezzanine insertions, accommodating a home office and play areas while intensifying the vertical dimension of the compact plan.


Rather than relying on excess space, the design extracts richness from section and detail, transforming constraints into opportunities for spatial variation.
Sustainability is embedded in the project not as an applied layer but as a generative principle. Narrow floor plates and operable openings enable cross ventilation, while clerestory windows draw daylight deep into the interior, reducing reliance on artificial lighting.


The orientation of the volumes captures solar exposure across different parts of the house, creating microclimates that shift throughout the day. In winter, the steep roofs efficiently shed snow while retaining thermal performance through engineered insulation strategies. In summer, passive cooling is achieved through vertical air movement between high and low openings.


Water management is handled on site, with runoff directed into infiltration systems to prevent impact on the sensitive Tahoe basin. Minimal hardscaping preserves the permeability of the ground, while felled trees are either repurposed or left to decompose, aligning the project with strict environmental standards.
The project’s most compelling quality lies in its capacity to frame everyday life as an immersive experience within nature. Large openings capture shifting light and seasonal change, while smaller gestures, such as a deep window sill in the primary bedroom, create moments of pause and reflection.


The architecture encourages a form of inhabitation that is both attentive and informal. Children move freely between interior and exterior spaces, while the staggered courtyards offer protected zones for play and gathering. The house does not monumentalize its setting but amplifies it, allowing the rhythms of the forest to permeate daily life.

Staggered Cabin reflects a broader trajectory in the work of Mork-Ulnes Architects, where Scandinavian sensibilities intersect with the experimental ethos of Northern California. The shed roofs recall both Nordic cabin typologies and the A-frame traditions introduced to the region in the mid-20th century, yet the composition resists nostalgia.
Instead, the project operates as a contemporary synthesis, where formal restraint, material economy, and environmental responsiveness converge. It is an architecture that does not seek to dominate the landscape but to participate in it, translating vernacular intelligence into a precise, contemporary language.

Project Credit
Architecture: Mork-Ulnes Architects / @morkulnesarchitects
Location: South Lake Tahoe, California, USA
Photography: Joe Fletcher / @joefletcherphoto
Film: Juan Benavides / @juanbenavidesl
Area: approx. 1,400 sq ft