
In Carabanchel, one of Madrid’s most industrious and culturally charged districts, a former car wash has been transformed into something far more speculative than a renovation. The project proposes a new architectural archetype, one that dissolves the conventional boundary between domestic life and the productive street. Here, the house is no longer conceived as a sealed refuge of privacy. It becomes a porous civic interior, capable of hosting an art studio, an office, a small café, or a space for exhibitions and events. Living and working are not merely juxtaposed but spatially entangled, allowing inhabitants to construct their social identity in direct dialogue with the city.


This intervention operates as more than an adaptive reuse of a neglected industrial shell. It reads the site as a case study of a broader condition, one that is physical and urban, but also economic, cultural and conceptual. Carabanchel’s productive ecosystem, long shaped by workshops and small-scale industries, is not erased but assimilated. Typology here extends beyond form. It becomes a social instrument, responding to what is already happening in the surrounding fabric and reframing it within a contemporary domestic framework.




THE LOFT RECONSIDERED
The project revisits the phenomenological memory of the loft. In New York during the 1960s and 1970s, the loft was defined by air and indeterminacy, cubic meters of isotropic space awaiting occupation. Function emerged through appropriation rather than prescription. That legacy resonates here, yet it is neither nostalgic nor literal.



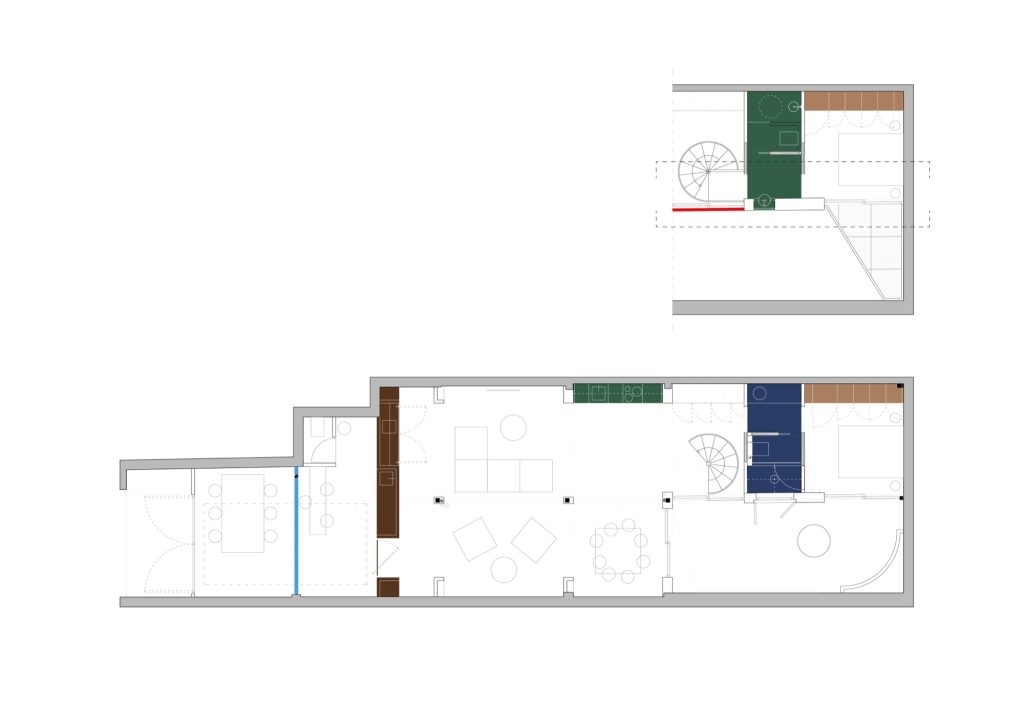
Inside, continuity prevails. The interior remains largely uninterrupted, its openness disturbed only by what appear to be found objects. Walls, doors, furniture, balconies, railings, shutters, pillars and beams punctuate the void. These elements signal the early stages of colonization, marking a slow and evolving occupation of space. The rhythm is irregular and improvised, shaped by daily life rather than imposed by plan. Visual disorder, produced by varied materials and colors, masks a latent functional logic. What appears spontaneous conceals a carefully calibrated domestic infrastructure.




LAYERS OF EXPOSURE
The relationship to the street becomes the project’s most explicit architectural gesture. A window, positioned in search of light and ventilation, simultaneously produces distance. Grilles and blinds mediate the gaze, constructing a paradox of openness and separation. From this aperture emerges an ephemeral façade, fashioned from a metal door similar to those lining the street. It folds onto itself, opening wide to the city or closing partially to admit only light from above.

Behind this metal plane lies another membrane, a glass door that adds yet another layer of regulation. The building’s epidermis is stratified, capable of modulating its degree of exposure. It can perform as an extension of the sidewalk or retreat into intimacy. Architecture becomes an adjustable interface rather than a fixed boundary.



At the rear, a newly introduced courtyard presents a more classical façade. Windows and shutters articulate a quieter domestic realm, controlling privacy for the deeper spaces. Between the street and the courtyard, the project stages what might be described as a celebration of constraint. False structural frames conceal installations and irregularities inherited from the industrial shell. These frames reintroduce rhythm to the interior, delineating territories without fully enclosing them. One space can become five, or five can dissolve back into one. Boundaries remain provisional, awaiting occupation.
TOWARD A NEW URBAN ARCHETYPE
In reworking an industrial relic, the project speculates on alternative ways of inhabiting the contemporary city. It challenges the notion of the dwelling as a purely private enclave and instead proposes a hybrid condition, domestic yet civic, intimate yet public. The archetype becomes a tool for imagining how architecture can participate in the construction of urban and social life.


Carabanchel, once peripheral and utilitarian, emerges as a testing ground for this transformation. The former car wash now operates as a living framework, a spatial device that absorbs the street’s energy while maintaining the layered intimacy of a home. In doing so, it suggests that the future of housing may lie not in isolation, but in calibrated openness.
Project Credit
Design firm: ba-rro / @ba____rro
Photo: Maru Serrano
Location: Madrid, Spane
Completed: 2025