
In Guajuvira, Brazil, a small pavilion sits among protected remnants of Atlantic Forest just 35 kilometres from Curitiba. The rural surroundings are defined by modest farms and natural springs that feed into the Iguaçu River basin, while native species gather under the canopy, including the unmistakable silhouette of the Araucaria. Rather than treating the site as a blank canvas, the architects approached it as a living system, shaping the project around tranquility, exercise and reflection, with minimal disturbance to the terrain and vegetation.


The building is conceived as a slender, almost dematerialised volume assembled largely from dry, locally sourced materials to limit waste and reduce environmental impact. Lifted on concrete beams, it hovers above the ground plane, preserving the site’s topography and allowing small fauna to move beneath it. The primary structure is formed by a rhythm of square frames in solid Itaúba wood, set out on a modular 3.5 metre grid. This disciplined cadence gives the pavilion its clarity and proportion, while continuous glass enclosure turns the frame into a porous boundary, extending the interior visually into the forest and softening the sense of inside and outside.





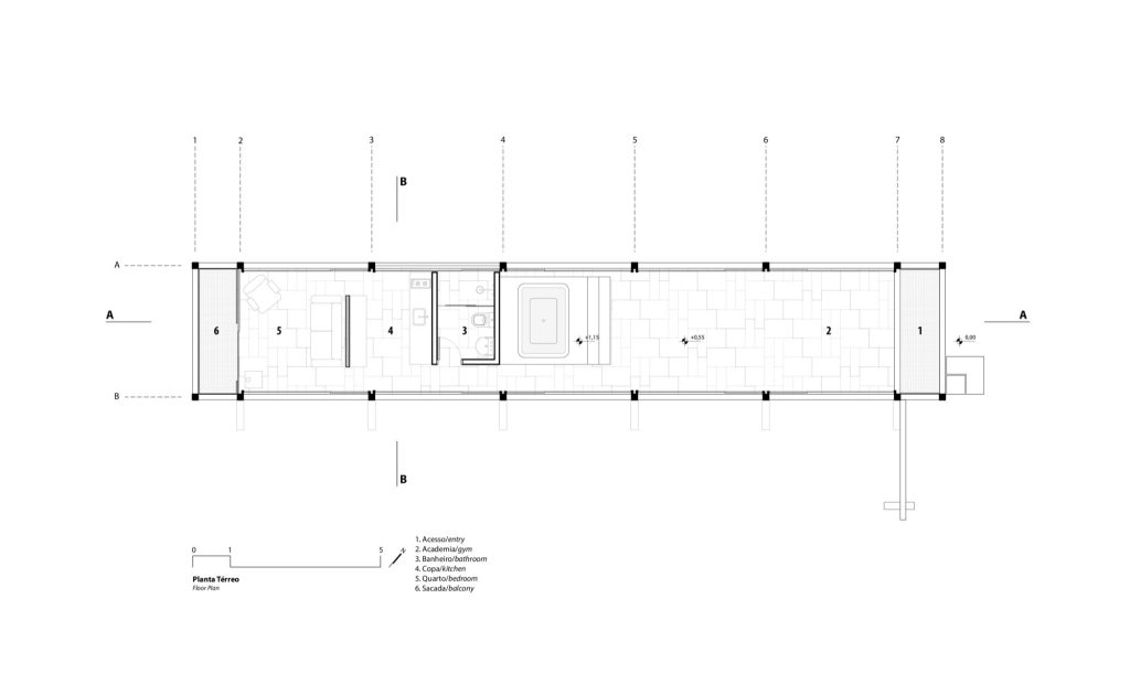
Within 74 square metres, the plan accommodates a fitness area, a bathroom with a bathtub, and a living and meditation room. Floors and ceilings are kept deliberately thin, meeting structural requirements without adding visual weight, so the timber grid and the surrounding landscape remain dominant.





Twelve sliding window openings encourage cross ventilation and pull daylight through the vegetation, producing shifting tones of shadow and reflection as the day changes. When opened, the pavilion becomes acoustically permeable too, carrying the nearby stream and the rustle of leaves into the rooms, reinforcing the sense of a retreat that does not retreat from its setting, but folds into it.


Project Credit
Name: Guaju Pavilion
location: Brazil, Curitiba
Design: YVA Arquitetura / @yvaarquitetura
Completed: 2023
Photo: Gabriel Tomich
More Photos