Where Changjiang village was erased, this brick museum builds a new public memory in Taiyuan

Changjiang Art Museum enters this condition as a public cultural building with a different kind of ambition. Rather than recreating what was lost, it proposes a contemporary response that acknowledges absence. The project is conceived as a shared civic space for the future, while holding on to the traces and atmosphere of human construction that once occupied this ground.

BRIDGING COMMUNITY LIFE AND THE CITY

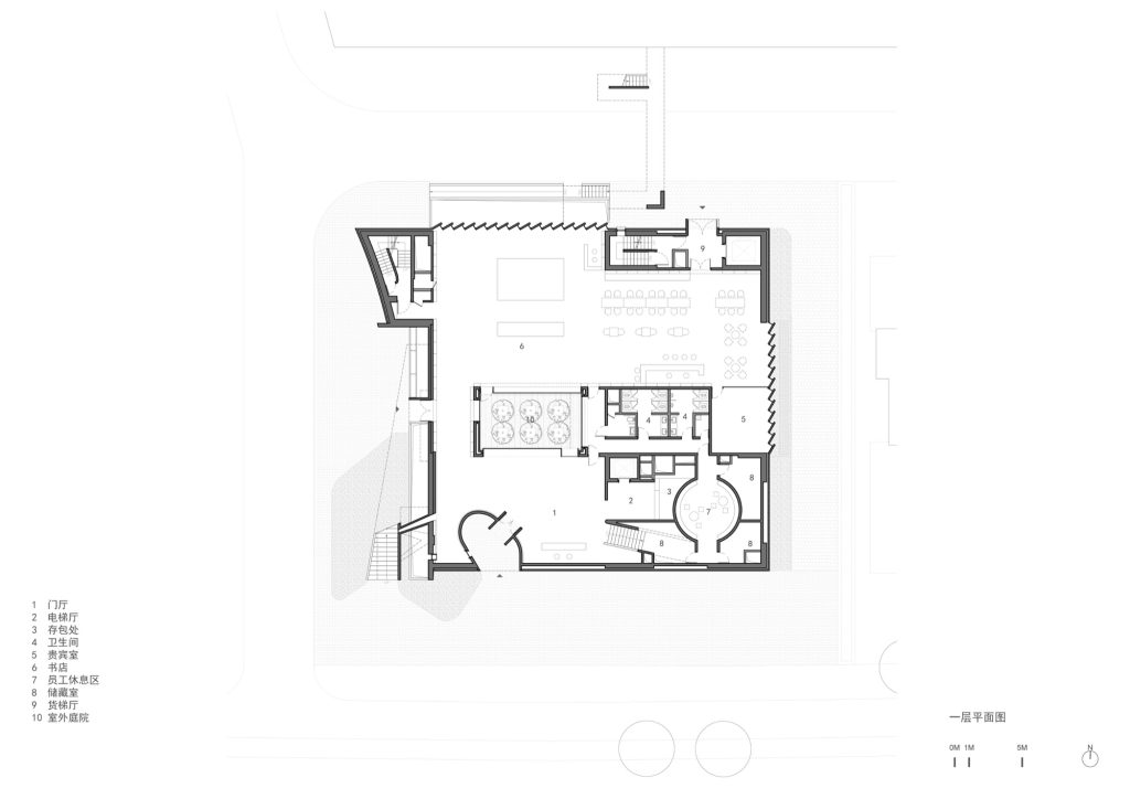
The museum sits on the southern edge of a newly built residential community, directly adjacent to the city grid. This position makes the building more than a container for exhibitions. It becomes an urban hinge, negotiating between neighborhood routines and the wider city.

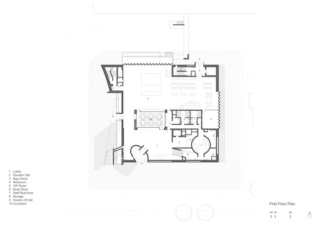
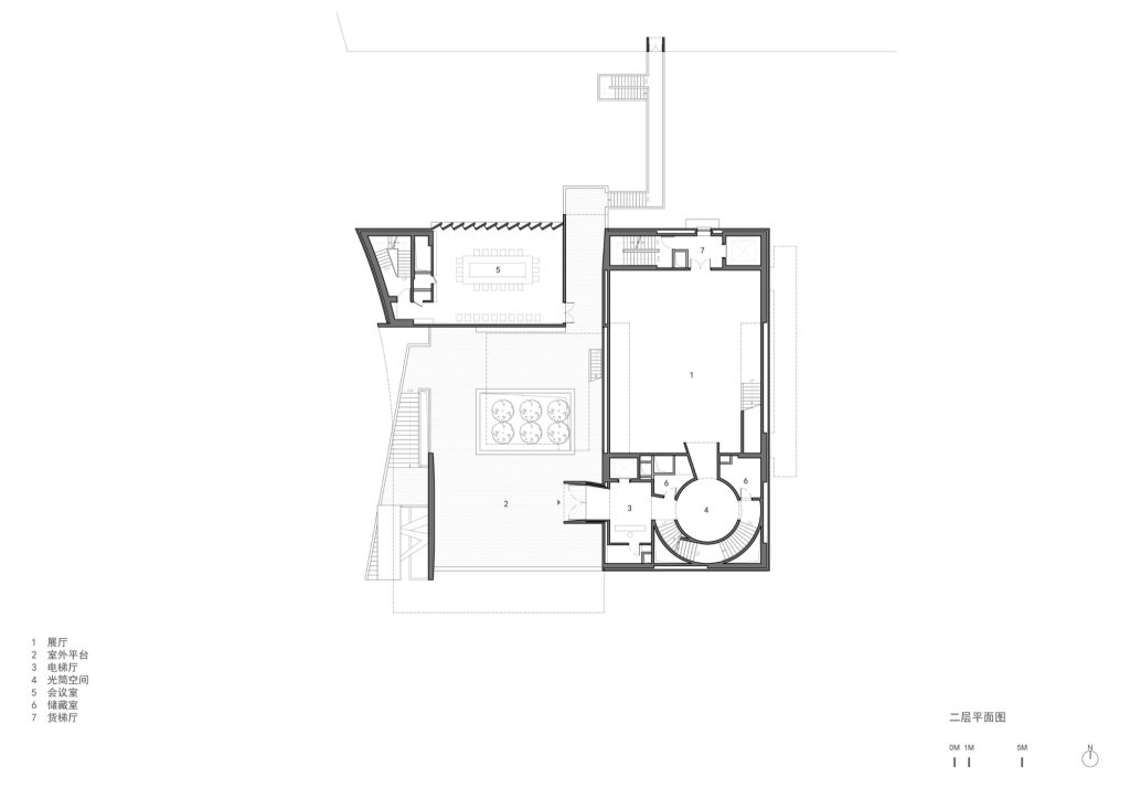
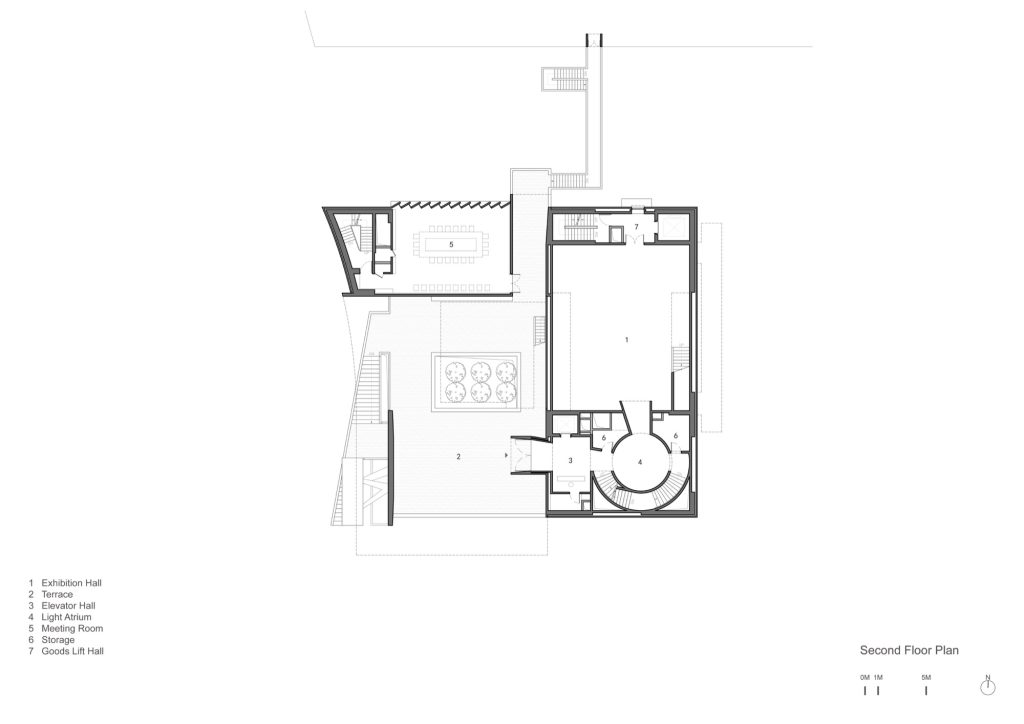
At the lower level, space is carved out at the southwest corner to form an outdoor stair that lands at street level and continues upward through the building to an open terrace. On the second level, the terrace operates as a raised plaza, structured around a tree courtyard at its center. It is a place for pause, gathering, and informal public use, a civic surface lifted above the street.

From here, a footbridge extends the museum’s reach, connecting across the road to the northern community. The result is a public crossing circulation that remains independent from the museum’s interior route, allowing everyday movement to coexist with the rhythms of exhibitions. Visitors and local residents are both accounted for, not as separate audiences, but as overlapping publics with different tempos.

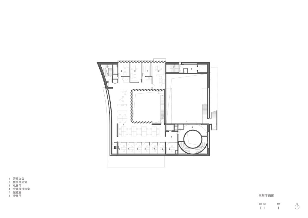
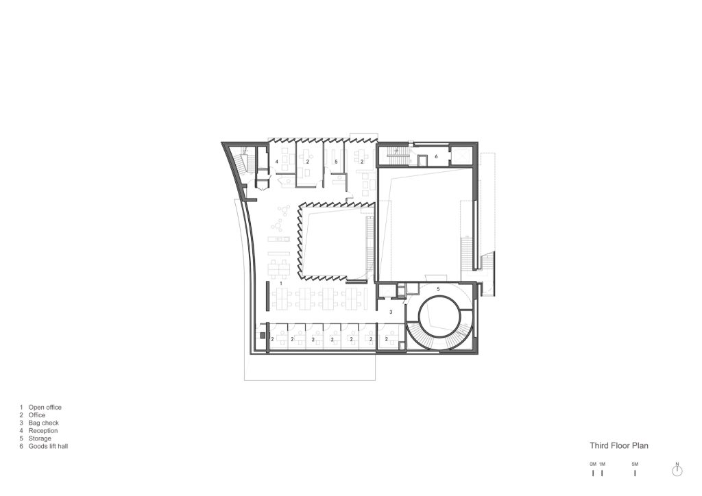
A LIGHT WELL AS THE BUILDING’S INNER COMPASS

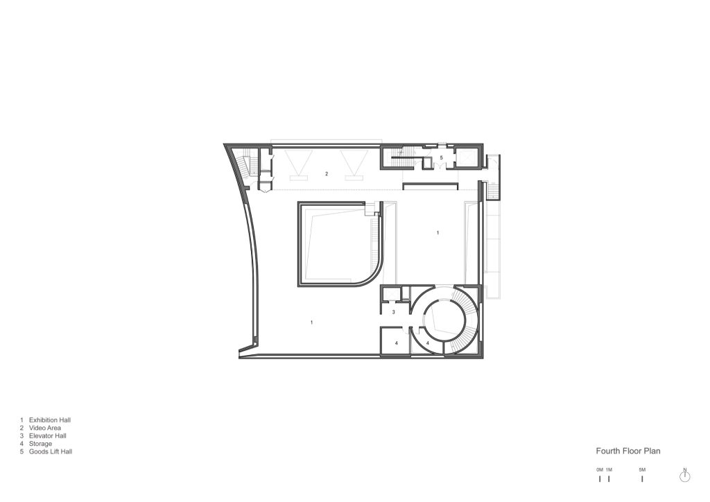
Inside, the museum is organized around a cylindrical light well, 5.7 meters in diameter and 16.4 meters in height. It functions as an anchor for the plan and a perceptual device for the visitor. The light well is both beginning and return.

The journey starts by passing through its lower portion, then climbing a spiral stair that coils upward toward the galleries. Along the way, openings at different levels frame partial views back into the void, turning orientation into a recurring experience rather than a one time instruction. The route eventually completes itself by stepping down from the top gallery along the light well again, returning to the point of departure. This looping sequence gives the museum a clear internal logic, while allowing moments of reflection and re calibration.

DAYLIGHT, SOFTENED INTO A QUIET ATMOSPHERE

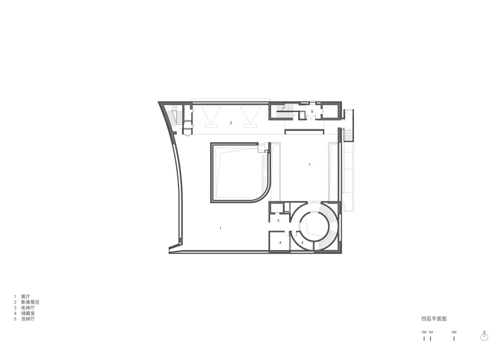
Within the galleries, daylight is filtered and softened by skylights. Light penetrates through a 1.9 by 1.9 meter grid of waffle beams, producing a homogeneous illumination that avoids dramatic contrasts. The effect is immersive without being theatrical, a calm brightness that supports looking, staying, and moving at a measured pace.

At the same time, the building does not seal itself off from the present. A staircase on the exterior links the second through fourth floors, offering another way to experience the museum as a public promenade. On the fourth floor, a protruding corner window and a southwest facing vertical window provide glimpses of Taiyuan’s contemporary cityscape, reminders that this interior calm sits inside a louder, faster urban transformation.

A QUIET WITNESS IN BRICK

Changjiang Art Museum reads, by design, as a solid brick block. It occupies a specific coordinate in space and time, not as a monument that shouts, but as an attentive witness. In a district shaped by rapid redevelopment, the museum’s mass and materiality suggest steadiness. It holds a public interior around a vertical void of light, and it offers exterior routes that fold into everyday life.

If the village’s disappearance fractured memory, the museum proposes another way to remember: not by reconstructing a lost image, but by making a place where the public can circulate, gather, and look, while the city continues to change around it.

Project Credit

Design firm: Vector Architects / @vectorarchitects
Location: Taiyuan, Shanxi, China
Material: Wood-form Concrete, Brick, Laminated Bamboo
Building Area: 3 932m2
Design Period: 2016.05 – 2017.03
Construction Period: 2017.03 – 2019.09
Photograph: Chen Hao

More Photos

1 Votes: 1 Upvotes, 0 Downvotes (1 Points)

Leave a reply

Stay Informed With the Latest & Most Important News

Loading Next Post...
Search
Loading

Signing-in 3 seconds...

Signing-up 3 seconds...