
In Taipei, a 72 square metre apartment within a four-decade-old public housing block is reimagined as a shared home for three generations. The project emerges from a post-pandemic decision: elderly parents and their daughter, once living separately across Taiwan, choose to live together in anticipation of long-term care. The renovation responds not only to spatial constraints, but to the emotional and temporal dimensions of cohabitation.
The existing conditions were defined by limitation. Low ceilings, three small enclosed bedrooms, and obstructed openings produced a compressed interior with limited access to light and ventilation. To the south, the apartment faces the greenery of the Taiwan Contemporary Culture Lab. To the north, it opens toward a dense commercial boulevard. The design negotiates these opposing atmospheres by reconfiguring the interior as a continuous and permeable environment.


At the core of the project stands a birch plywood volume, conceived as a central block that reorganizes the entire domestic landscape. Rather than distributing functions along the perimeter, the design concentrates storage, utilities, and transitional spaces within this central element. Around it, the kitchen, dining area, daybed, and private rooms unfold in sequence, forming a fluid and circular circulation.


This strategy dissolves the rigidity of the original layout. Spaces are no longer defined by enclosure but by adjacency and movement, allowing daily life to unfold as a continuous flow. The central block becomes both spatial anchor and infrastructural core, supporting the evolving needs of the household.





Light is treated as a primary material. A luminous volume, composed of fluted and frosted glass, is integrated into the central block, diffusing daylight across the interior. This refracted glow softens boundaries and extends visual depth, counteracting the limitations of the original structure.

The intervention restores a dialogue between interior and exterior conditions. Openings are cleared, obstructions removed, and air is allowed to circulate freely between the contrasting environments of north and south. Light, air, and sound become connective elements that unify the space.


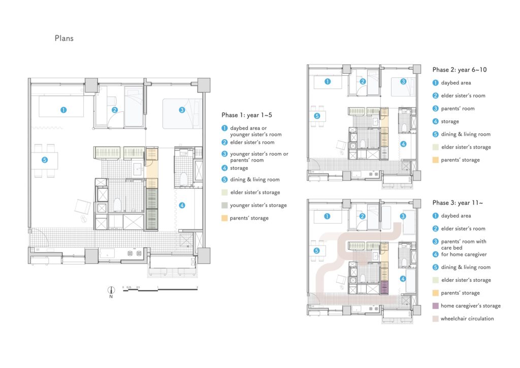
The project is structured around a series of evolving living scenarios that anticipate future care requirements. Spatial flexibility is embedded within the design. During the initial phase, the window-side daybed functions as a temporary bedroom. As the household stabilizes, a storage room is reserved for a future caregiver.


Both the master bedroom and the daybed area are dimensioned to accommodate a hospital bed with minimal adjustment. Circulation paths are widened to support wheelchair access, while infrastructure allows for the integration of medical equipment without disrupting the spatial continuity. The apartment is conceived not as a fixed arrangement, but as a framework capable of adapting over time.

The daybed, positioned along the window, draws from the concept of the Japanese noryo-yuka, a platform associated with rest and seasonal retreat. Reinterpreted through a contemporary lens, it becomes a place for gathering, conversation, and quiet observation. Constructed from solid wood, cylindrical supports, and stainless steel elements, it introduces a tactile and cultural layer within the domestic setting.

Material and colour are deployed to enrich perception. A varied palette of textures and geometric compositions creates depth and stimulation, particularly for elderly residents who spend extended time indoors. Storage is consolidated within the central block, allowing bedrooms to remain open and uncluttered.
Project Credits
Project Name: L’appartement Hu
Design firm: OUJ / @oujwp
Office Location : Taiwan, Taipei
Completion Year: 08.2025
Photo: Studio Millspace / @studio_millspace