
Rooted in the spatial intelligence of traditional nomadic life, this resort translates the logic of migration, seasonal rhythm, and light-footprint inhabitation into a contemporary landscape architecture. Its guiding idea, “Live by Water”, is less a slogan than a planning tool: water becomes the project’s infrastructure, orientation device, and atmosphere maker, stitching together experience and ecology in one continuous trace.



The masterplan unfolds along a hydrological corridor that links Swan Lake to the Xilamuren River. Rather than treating circulation as a paved grid imposed on the grassland, the resort builds a living route that follows water as a connective tissue. This blue thread generates a legible, walkable sequence of destinations while functioning as an ecological spine, supporting microclimates, biodiversity, and a softer relationship between human presence and the steppe.


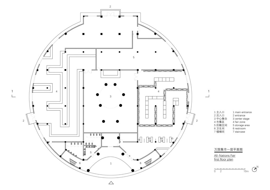
At the center sits a multifunctional cultural complex, conceived as a shared commons for performance and gathering. Theater, exhibition spaces, cultural fair programming, and a food market are composed around a strong axis oriented toward sunset views, where the ceremonial line of sight meets the water’s trajectory. The result is a plan that feels both composed and open ended: a symmetrical clarity that helps visitors navigate, paired with the looseness of a landscape that remains the main protagonist.


Material choices reinforce the project’s ambition for longevity with restraint. PTFE membranes introduce a lightweight envelope suited to harsh climates, balancing durability with reduced structural demand. Combined with regional building knowledge and construction techniques, the architecture aims for low energy operation and a quieter carbon footprint, framing decarbonization not as an add on, but as an embedded design ethic. The amphitheater continues this approach, settling into the terrain so it reads as an extension of the land rather than an object placed upon it, amplifying the sense of belonging while keeping the horizon intact.




If water is the project’s spine, wind is its voice. A kinetic installation composed of white steel and blue cloth translates the steppe’s most intangible force into a visible, moving landmark. Animated by changing gusts, it evokes the image of the Tengri River in the sky, turning climate into choreography and offering a symbol that is both local in spirit and contemporary in form. It is an artwork that never repeats itself, measuring time by weather, and presence by motion.

Beyond form, the resort is staged as a multi sensorial environment. The landscape strategy is calibrated to engage sight, sound, taste, smell, touch, and mind, inviting visitors to slow down and read the steppe through small shifts in air, light, texture, and proximity to water. In doing so, the resort positions itself less as an escape from nature than as a framework for attentiveness: a place for communication and interaction, but also for reverence.

Taken together, the project proposes a contemporary way of inhabiting the grassland that does not romanticize the nomadic past, yet learns from its humility. By choreographing circulation through water, anchoring public life around sunset, and elevating wind into a cultural installation, the resort celebrates the vital pact between water, wind, land, and people, and reframes tourism as a lighter, more ecological act of presence.



Project Credit
Project name: Silk-Road Dreamland Steppe Resort
Location: China, Baotou
Design: PLAT ASIA / @platasia
Completed: 2021
Photo: Arch-Exist
More Photos