
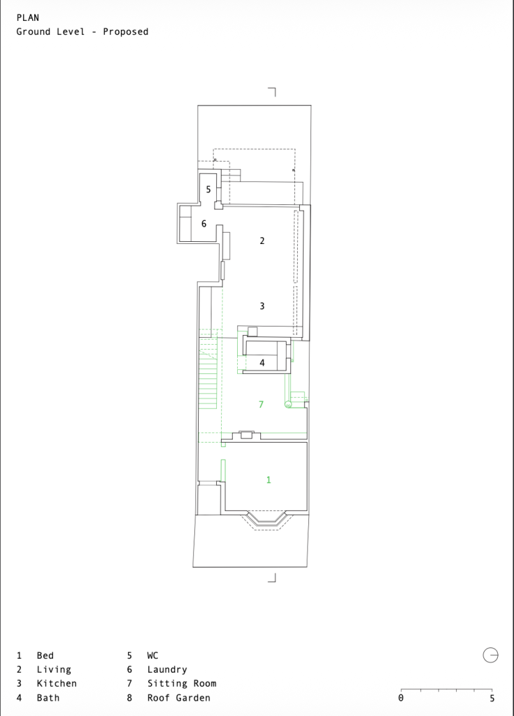
Rather than replacing the existing single-storey terrace house, A Light Addition proposes a careful architectural extension that builds upon the structure already embedded within the building. Designed as a new upper level, the project introduces two bedrooms, a bathroom and a rooftop garden while preserving the spatial integrity of the original dwelling. By elevating the new programme above the existing roofline, the project introduces an additional layer of domestic life without compromising the surrounding views across neighbouring rooftops. The extension allows the compact site to accommodate growing family needs while maintaining a sense of openness.


At the centre of the new level is a multi faceted highlight window that defines the spatial atmosphere of the addition. This distinctive architectural element captures shifting daylight and distributes it through the interior, ensuring the new rooms feel generous despite the limited footprint. In this way, the extension transforms the house into a brighter and more breathable environment while minimising demolition and material waste.



The project builds upon a decision made during a renovation in 2012, when the clients installed a steel structure designed to support potential future expansion. This foresight enabled the architects to construct the new level with minimal disruption to the existing building fabric.
The addition gently touches the original roof structure, carefully integrating interior and exterior spaces while allowing daylight to penetrate deeper into the ground floor of the house. The architectural strategy is organised around a central open staircase that connects both storeys and acts as the spatial heart of the home.


Positioned above the existing kitchen cabinetry, the stair references the material language of the original terrace house while guiding movement and light between levels. Sloped ceilings and skylights amplify this vertical connection, allowing daylight to cascade down into the shared living areas below.


Through this spatial configuration, the project balances collective family life with individual autonomy. As the children grow into adolescence, the new level provides privacy and independence while maintaining visual and spatial continuity throughout the house.


The architectural expression of the upper level is defined by a continuous band of U channel glazing running along the external walls. This translucent envelope allows sunlight to filter through the house throughout the day while preserving privacy in the dense urban setting.




Obscured glass panels positioned at a consistent datum of 2.4 metres create a sense of openness without exposing the interior to neighbouring views. Carefully positioned operable casement windows punctuate this glazed band, allowing for controlled outward views and natural cross ventilation.
This strategy enables the occupants to experience the shifting qualities of daylight across seasons while maintaining a comfortable level of privacy. Within the compact spatial dimensions of the terrace house, the glazing system creates a surprisingly expansive atmosphere.

Cost efficiency and sustainability were fundamental considerations throughout the project. Material selections favour durability, affordability and recyclability, ensuring the extension remains both financially and environmentally responsible.
External and internal cladding employ modest yet effective materials such as mini orb sheeting, construction bendi ply and wood wool panels. These materials provide textural richness while remaining economical and easy to maintain.






The decision to reuse the existing steel structure significantly reduced the need for structural intervention. Only a single new column was introduced at ground level to support the additional floor. Even the roof garden was carefully positioned between existing roof rafters, allowing the new landscape element to sit lightly within the existing structural framework. Through these restrained interventions, the project achieves a substantial spatial transformation while preserving the integrity of the original building.

The successful delivery of A Light Addition relied on close collaboration between the design team and specialist contractors. BASE Constructs ensured the renovation was executed with precision, translating the architectural concept into built form with careful attention to detail.


GCF Designs developed the joinery throughout the house, maintaining material consistency across both existing and new spaces. Meanwhile, Jala Studio introduced a resilient native planting scheme that softens the rooftop garden and contributes additional greenery to the surrounding neighbourhood.
Together, these contributions reinforce the project’s central ambition: a modest yet thoughtful extension that expands the possibilities of domestic life while respecting the constraints of an existing terrace house.
Project Credit
Project name: A Light Addition
Architect: Office MI—JI / @office_mi.ji
Location: St.Kilda East Victoria, Australia
Completed: 2024
Size: 117sqm before renovation, 166sqm after renovation
Photo: Ben Hosking / @benhoskingphotographer