Burckhardt unveils Teaching and Learning Center as a flexible hub for contemporary education

On November 20, 2025, RheinMain University of Applied Sciences inaugurated its new Teaching and Learning Center in Wiesbaden, a project by Swiss practice Burckhardt that redefines the spatial and social infrastructure of contemporary education. Conceived as a shared platform for more than 70 degree programs, the building consolidates previously dispersed faculties into a single architectural framework designed to foster interaction, adaptability, and collective learning.

The project emerges from a 2019 competition commissioned by the State of Hesse, positioning the new center not only as an academic facility but as a catalyst for campus life. Seminar rooms, workspaces, a lecture hall, library, and cafeteria are brought together within a cohesive environment that supports both structured teaching and informal exchange.

Set along the campus boulevard, the four storey volume establishes a clear urban presence, marking the southern threshold of the university. Its cubic form, partially embedded into the sloping terrain, operates as both gateway and anchor, aligning with existing buildings to define a new courtyard at the heart of the campus.

Within this open space, a large staircase unfolds beneath a canopy of trees, offering a shaded terrain for gathering, discussion, and pause. The gesture transforms circulation into inhabitable landscape, extending the building’s pedagogical ambitions into the exterior realm.

The architectural language is grounded in a rigorous material logic. A concrete facade articulates the building as a precise and legible “house of work,” where structure and expression converge. A grid of reinforced concrete elements is layered over prefabricated panels, producing a subtle relief that registers both depth and order.

Continuous horizontal window bands reinforce the building’s calm tectonic rhythm, balancing solidity with permeability. The result is an envelope that communicates stability while allowing light to permeate deep into the interior.

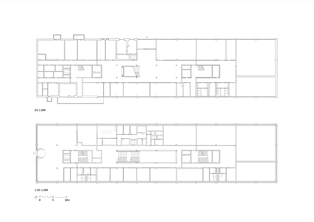
Internally, the building is organized into three interrelated zones that unfold across four levels. The western edge accommodates the main entrance and cafeteria, opening toward a future campus forecourt and establishing a porous threshold between public and academic life. To the east, work and study areas extend vertically, connecting directly to the courtyard at ground level.

At the core of the project lies an atrium that functions as both spatial and social condenser. Around it, seminar rooms, a lecture hall, and open lounge areas are interwoven, creating a dynamic sequence of spaces that support varied modes of learning. The library and reading areas occupy the upper levels, offering quieter environments while maintaining visual continuity with the central void.

Circulation becomes an active architectural device. An open staircase linking the first and second floors encourages movement, encounter, and lingering, while additional staircases and elevators ensure full accessibility throughout the building.

The Teaching and Learning Center is conceived as a robust yet flexible structural system, defined by a grid of concrete slabs and columns that enables multiple configurations over time. This tectonic framework supports a wide spectrum of uses, from a lecture hall accommodating 200 people to smaller seminar rooms and informal workspaces.

Rather than prescribing fixed functions, the architecture anticipates change. It offers a spatial field that can evolve alongside pedagogical practices, positioning the building as an enduring platform for interdisciplinary exchange.

In Wiesbaden, Burckhardt’s intervention demonstrates how architectural clarity and structural rigor can support a more open, connected model of education, where learning extends beyond the classroom into a continuous landscape of interaction.

Project Credit

Project name: Teaching and Learning Center (LLZ)
Location: Wiesbaden, Germany
Design firm: Burckhardt Architecture / @burckhardtarchitecture
Completion: 2025
Photo: Fritz Brunier / @fritz.brunier

More Photos

5 Votes: 5 Upvotes, 0 Downvotes (5 Points)

Leave a reply

Stay Informed With the Latest & Most Important News

Loading Next Post...
Search
Loading

Signing-in 3 seconds...

Signing-up 3 seconds...