
In 2022, the town of Červený Kostelec initiated the transformation of the Břetislav Kafka Library, responding initially to worn furnishings but ultimately uncovering the need for a far more comprehensive intervention. What began as a refitting evolved into a full renovation, including thermal insulation and a rethinking of the building’s spatial identity. The project demonstrates how careful architectural recalibration can renew a civic institution without compromising its familiar character.


Housed within a historic former inn, the library is defined by a layout that resists alteration. Rather than imposing structural change, the architects embraced the constraints, crafting an interior that works in dialogue with the existing architecture. The strategy prioritises clarity, daylight and visual coherence, aligning contemporary library functions with the scale and intimacy of a small town setting. The result preserves the atmosphere of a local library while sharpening its spatial legibility.


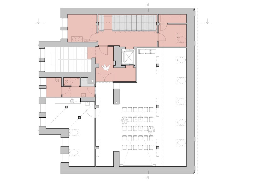
The entrance was reconceived as a civic threshold. Accessed through a passageway, the new main entry establishes a clearer presence on the street and reconnects the building to its courtyard garden. Generously proportioned metal gates facing the street act as a distinct visual marker, while translucent gates toward the garden filter daylight deep into the passage. A large format window positioned just beyond the street entrance reveals the interior at a glance, dissolving the boundary between public space and reading room. The passage itself was cleared to expose original pilasters, between which bulletin boards form a modest exhibition zone, reinforcing the library’s role as a platform for local culture.





A comprehensive furniture concept anchors the interior transformation. Neutral grey built in cabinetry lines the perimeter walls, forming a calm architectural backdrop. At the centre of each room, mobile red elements introduce a vivid counterpoint. These multifunctional units combine storage, seating and integrated lighting, and are mounted on wheels to allow rapid reconfiguration for readings, workshops or community gatherings. In the adult section on the ground floor, the layout follows a rational rhythm of parallel rows. Upstairs, in the children’s section, shelving shifts into more playful geometries and varied heights calibrated to different age groups. A textile canopy by artist Linda Retterová, developed through a workshop with local children, floats above the space. It softens acoustics while admitting diffused light, adding a tactile layer to the reading environment.



Colour operates as both atmosphere and reference. Shades of pink and red extend from the entrance passage to the floors and furniture, generating a warm and welcoming tone. The palette subtly echoes the town’s name and its landmark red church, embedding the intervention within a local narrative. In contrast, stainless steel details introduce a note of restraint, underscoring the institutional gravity of the library as a civic anchor.




The renovation of the Břetislav Kafka Library reframes a modest municipal building as a contemporary cultural interior. Without resorting to spectacle, it clarifies circulation, enhances daylight and foregrounds adaptability. In doing so, it affirms the enduring relevance of the public library as a shared urban living room within the evolving fabric of Červený Kostelec.





Project Credit
Location: Sokolská 293, 549 41 Červený Kostelec, Czechia
Completion Year: 2025
Built-up area: 285 m²
Usable Area: 649 m²
Enclosed Space: 3,650 m³
Design firm: PAPUNDEKL ARCHITEKTI / @papundeklarchitekti
Photo: Alex Shoots Buildings / @alex.shoots.buildings
More Photos